お気に入りを解除しました。
平野町ときわ
物件番号:A106216
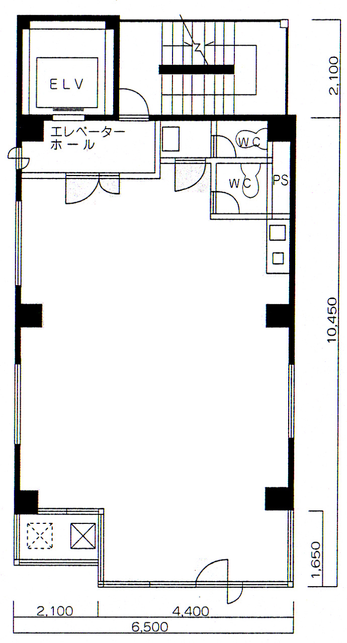
3階19.07坪

- この物件の賃料の価格帯(共益費込)
- この部屋は成約済みです
| 物件名 | 平野町ときわ 【このビルのその他の募集階】 |
||
|---|---|---|---|
| 住所 | 大阪府大阪市中央区平野町2丁目5番11号 淀屋橋・北浜でよく検索されるその他の物件 |
||
| 構造(規模) | 鉄骨造地上8階建 | ||
| 築年月 | 1995年8月31日 | ||
| 坪数 |
19.07坪 |
||
| 階数 | 3階 | ||
| 保証金 | - | ||
| 敷金 | - | ||
| 礼金 | - | ||
| 沿線 最寄駅 |
地下鉄御堂筋線 淀屋橋駅 徒歩5分 (淀屋橋駅の賃貸事務所) 地下鉄堺筋線 北浜駅 徒歩6分 (北浜駅の賃貸事務所) 京阪線(本線・中之島線) 北浜駅 徒歩7分 (北浜駅の賃貸事務所) |
||
| アクセス | 新大阪駅まで電車14分 大阪駅梅田駅まで電車9分 関西空港まで電車57分、車51分 伊丹空港まで車25分 高速入口:環状線高麗橋入口 |
||
| EV基数 | 1基 | 人荷EV基数 | - |
| 空調タイプ | 個別 | ||
| 備考 | ・新耐震基準適合 ・1フロア1テナント ・天井高2350mm |
||

ビルの前面道路は歩道が広くとられており、ゆったりとした雰囲気があります。このビルは約20坪のワンフロアワンテナントで窓面の多い明るいオフィス。室内に水廻りがあり、清掃は管理会社が行います。管理も良好で清潔感溢れるビルです。
- お電話でお問い合わせ(無料)
-
平日13時までのお問い合わせで
当日に物件をご紹介!
お電話の場合「物件番号:A106216」
をお伝えください

