お気に入りを解除しました。
パシフィックマークス西梅田
物件番号:C301218
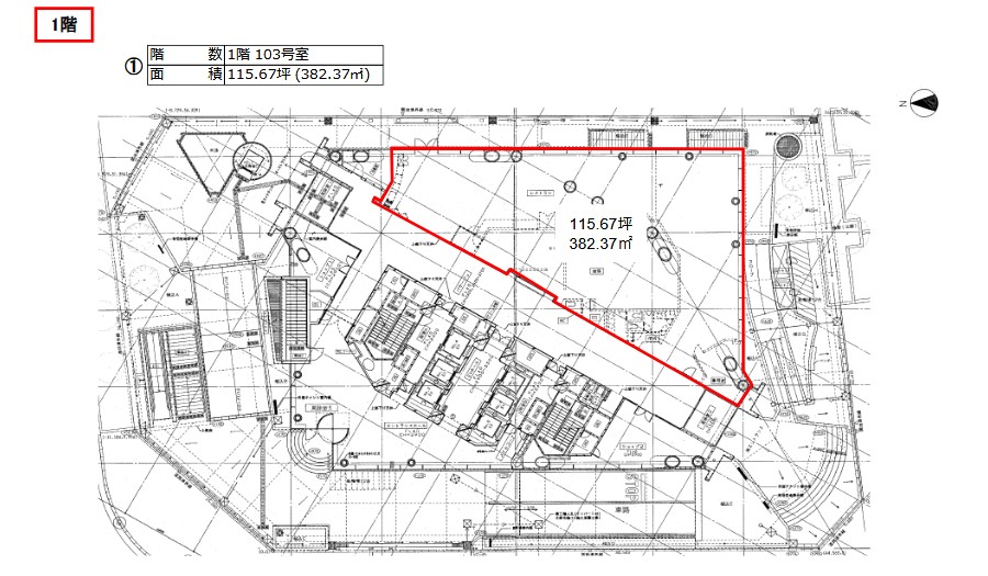
1階115.67坪

- この物件の賃料の価格帯(共益費込)
- この部屋は成約済みです
| 物件名 | パシフィックマークス西梅田 【このビルのその他の募集階】 |
||
|---|---|---|---|
| 住所 | 大阪府大阪市北区梅田2丁目6番20号 西梅田・堂島・福島でよく検索されるその他の物件 |
||
| 構造(規模) | 鉄骨鉄筋コンクリート造地上18階地下2階建 | ||
| 築年月 | 1997年4月1日 | ||
| 坪数 |
115.67坪 |
||
| 階数 | 1階 | ||
| 保証金 | - | ||
| 敷金 | - | ||
| 礼金 | - | ||
| 沿線 最寄駅 |
地下鉄四つ橋線 西梅田駅 徒歩5分 (西梅田駅の賃貸事務所) JR大阪環状線 大阪駅 徒歩5分 (大阪駅の賃貸事務所) JR東西線 北新地駅 徒歩3分 (北新地駅の賃貸事務所) |
||
| アクセス | 新大阪駅まで電車11分 大阪駅梅田駅まで電車5分 関西空港まで電車60分、車45分 伊丹空港まで車20分 高速入口:環状線梅田・堂島入口 |
||
| EV基数 | 6基 | 人荷EV基数 | 1基 |
| 空調タイプ | 集中+個別 | ||
| 備考 | |||

「オオサカガーデンシティー」の一角に美しいフォルムでそびえる大型ビル。各線「梅田」駅へ地下街により直結し、利便性が大変良く、エレベーターも6基設置されビルのグレードも満足頂けます。貸室は20坪代からワンフロアの180坪までバリエーション豊富にご提供可能です。
- お電話でお問い合わせ(無料)
-
平日13時までのお問い合わせで
当日に物件をご紹介!
お電話の場合「物件番号:C301218」
をお伝えください

