お気に入りを解除しました。
SP
物件番号:D101302
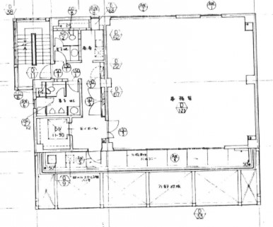
8階40.5坪

- この物件の賃料の価格帯(共益費込)
- この部屋は成約済みです
| 物件名 | SP 【このビルのその他の募集階】 |
||
|---|---|---|---|
| 住所 | 大阪府大阪市淀川区西中島3丁目3番4号 新大阪・西中島でよく検索されるその他の物件 |
||
| 構造(規模) | 鉄骨鉄筋コンクリート造地上8階建 | ||
| 築年月 | 1989年10月1日 | ||
| 坪数 |
40.5坪 |
||
| 階数 | 8階 | ||
| 保証金 | - | ||
| 敷金 | - | ||
| 礼金 | - | ||
| 沿線 最寄駅 |
地下鉄御堂筋線 西中島南方駅 徒歩3分 (西中島南方駅の賃貸事務所) 地下鉄御堂筋線 新大阪駅 徒歩10分 (新大阪駅の賃貸事務所) JR東海道本線 新大阪駅 徒歩10分 (新大阪駅の賃貸事務所) |
||
| アクセス | 新大阪駅まで電車5分 大阪駅梅田駅まで電車11分 関西空港まで電車64分、車50分 伊丹空港まで車20分 高速入口:11号線加島入口 |
||
| EV基数 | 1基 | 人荷EV基数 | - |
| 空調タイプ | 個別 | ||
| 備考 | 新耐震基準適合。1フロア1テナント。地下鉄御堂筋線の西中島南方駅から徒歩3分。空調全館リニューアル。バルコニー有 | ||
大通りから少し中に入った、落ち着いた周辺環境に位置する西中島南方駅にほど近いオフィスビル。オーナーも使用しており、丁寧な手入れがなされており管理は良好です。ワンフロアワンテナントの仕様になっており、お隣に気を遣わずにご入居が可能。
- お電話でお問い合わせ(無料)
-
平日13時までのお問い合わせで
当日に物件をご紹介!
お電話の場合「物件番号:D101302」
をお伝えください

