お気に入りを解除しました。
新大阪テラサキ第2
物件番号:D202108
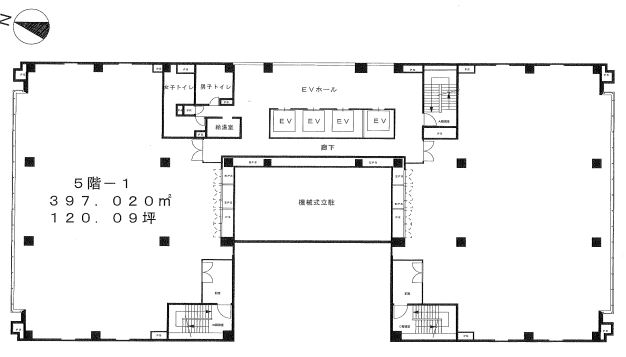
5階120.09坪
- この物件の賃料の価格帯(共益費込)
- この部屋は成約済みです
| 物件名 | 新大阪テラサキ第2 【このビルのその他の募集階】 |
||
|---|---|---|---|
| 住所 | 大阪府大阪市淀川区西宮原1丁目8番29号 新大阪・西中島でよく検索されるその他の物件 |
||
| 構造(規模) | 鉄骨・鉄骨鉄筋コンクリート造地上12階地下1階建 | ||
| 築年月 | 1995年1月1日 | ||
| 坪数 |
120.09坪 |
||
| 階数 | 5階 | ||
| 保証金 | - | ||
| 敷金 | - | ||
| 礼金 | - | ||
| 沿線 最寄駅 |
地下鉄御堂筋線 新大阪駅 徒歩7分 (新大阪駅の賃貸事務所) JR東海道本線 新大阪駅 徒歩7分 (新大阪駅の賃貸事務所) 地下鉄御堂筋線 東三国駅 徒歩11分 (東三国駅の賃貸事務所) |
||
| アクセス | 新大阪駅まで電車7分 大阪駅梅田駅まで電車11分 関西空港まで電車66分、車50分 伊丹空港まで車20分 高速入口:11号線加島入口 |
||
| EV基数 | 4基 | 人荷EV基数 | - |
| 空調タイプ | 個別 | ||
| 備考 | 基準階面積約292坪の大型ビル。ゆとりのあるエントランスホールに4基のエレベーター。 大通りに面し、ぱっと目を惹くインテリジェントビル。 |
||

公開空地を広く設け、植栽の緑が鮮やかな凛とした印象のオフィスビル。
駐車場の収容台数も多く、ハイルーフ対応の区画もあります。
- お電話でお問い合わせ(無料)
-
平日13時までのお問い合わせで
当日に物件をご紹介!
お電話の場合「物件番号:D202108」
をお伝えください
