お気に入りを解除しました。
中之島インテス
物件番号:C305602
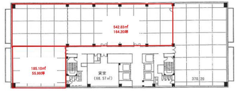
17階164.2坪
- この物件の賃料の価格帯(共益費込)
- この部屋は成約済みです
| 物件名 | 中之島インテス 【このビルのその他の募集階】 |
||
|---|---|---|---|
| 住所 | 大阪府大阪市北区中之島6丁目2番40号 西梅田・堂島・福島・中之島でよく検索されるその他の物件 |
||
| 構造(規模) | 鉄骨造・鉄骨鉄筋コンクリート造地上22階地下1階塔屋2階建 | ||
| 築年月 | 1992年10月1日 | ||
| 坪数 |
164.2坪 |
||
| 階数 | 17階 | ||
| 保証金 | - | ||
| 敷金 | - | ||
| 礼金 | - | ||
| 沿線 最寄駅 |
京阪線(本線・中之島線) 中之島駅 徒歩2分 (中之島駅の賃貸事務所) 地下鉄千日前線 玉川駅 徒歩10分 (玉川駅の賃貸事務所) 地下鉄中央線 阿波座駅 徒歩10分 (阿波座駅の賃貸事務所) |
||
| アクセス | 新大阪駅まで電車26分 大阪駅梅田駅まで電車20分 関西空港まで電車65分、車45分 伊丹空港まで車20分 高速入口:環状線堂島・中之島・中之島西入口 |
||
| EV基数 | 8基 | 人荷EV基数 | 1基 |
| 空調タイプ | 集中+個別 | ||
| 備考 | ワンフロア約335坪の無柱空間です。川に囲まれた中之島の美しい景観を、オフィスの眺望に最大限とりこめる貸室の形状。天井高さは2,700㎜から2,800㎜と開放感があります。 | ||

中之島オフィスエリアのランドマークとしての格調をもつハイグレードビル。ガラスとアルミを美しく調和させたシャープな外観が印象的。貸室は無柱空間が自由でフレキシブルなオフィスレイアウトを実現。JR大阪駅まで無料シャトルバスも運行しています。
- お電話でお問い合わせ(無料)
-
平日13時までのお問い合わせで
当日に物件をご紹介!
お電話の場合「物件番号:C305602」
をお伝えください

