お気に入りを解除しました。
ACN信濃橋
物件番号:B104176
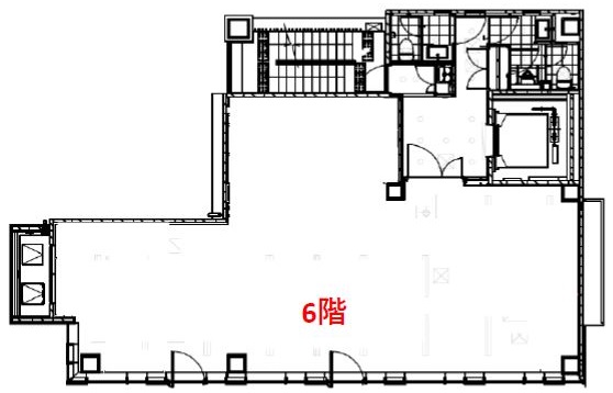
6階36.86坪
- この物件の賃料の価格帯(共益費込)
- この部屋は成約済みです
| 物件名 | ACN信濃橋 【このビルのその他の募集階】 |
||
|---|---|---|---|
| 住所 | 大阪府大阪市西区靭本町1丁目4番17号 本町・堺筋本町・肥後橋・本町でよく検索されるその他の物件 |
||
| 構造(規模) | 鉄骨造地上11階建 | ||
| 築年月 | 2009年5月 | ||
| 坪数 |
36.86坪 |
||
| 階数 | 6階 | ||
| 保証金 | - | ||
| 敷金 | - | ||
| 礼金 | - | ||
| 沿線 最寄駅 |
地下鉄四つ橋線 本町駅 徒歩1分 (本町駅の賃貸事務所) 地下鉄御堂筋線 本町駅 徒歩5分 (本町駅の賃貸事務所) 地下鉄四つ橋線 肥後橋駅 徒歩11分 (肥後橋駅の賃貸事務所) |
||
| アクセス | 新大阪駅まで電車21分 大阪駅梅田駅まで電車14分 関西空港まで電車58分、車52分 伊丹空港まで車34分 高速入口:阪神高速環状線 高麗橋入口 |
||
| EV基数 | 1基 | 人荷EV基数 | - |
| 空調タイプ | 個別 | ||
| 備考 | ・駅近 ・大通り沿い ・角ビル ・新耐震基準適合 ・ワンフロアワンテナント |
||

四ツ橋筋に面した角ビルで、ガラスウォールの外観が目を惹くビルです。ワンフロアワンテナントなので、気兼ねなく利用できます。
- お電話でお問い合わせ(無料)
-
平日13時までのお問い合わせで
当日に物件をご紹介!
お電話の場合「物件番号:B104176」
をお伝えください
