お気に入りを解除しました。
UAK
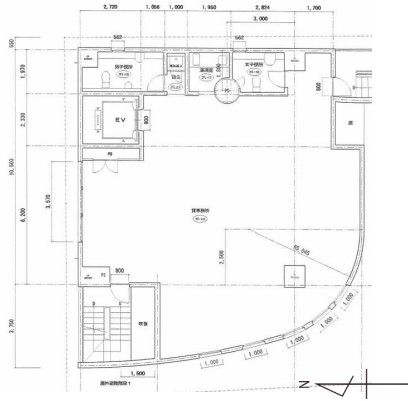
物件番号:C202002
2階47.29坪

- この物件の賃料の価格帯(共益費込)
- この部屋は成約済みです
| 物件名 | UAK 【このビルのその他の募集階】 |
||
|---|---|---|---|
| 住所 | 大阪府大阪市北区南扇町1番5号 南森町でよく検索されるその他の物件 |
||
| 構造(規模) | 鉄骨鉄筋コンクリート・鉄骨造地上7階建 | ||
| 築年月 | 1995年8月1日 | ||
| 坪数 |
47.29坪 |
||
| 階数 | 2階 | ||
| 保証金 | - | ||
| 敷金 | - | ||
| 礼金 | - | ||
| 沿線 最寄駅 |
地下鉄谷町線 南森町駅 徒歩4分 (南森町駅の賃貸事務所) 地下鉄堺筋線 扇町駅 徒歩4分 (扇町駅の賃貸事務所) JR東西線 大阪天満宮駅 徒歩5分 (大阪天満宮駅の賃貸事務所) |
||
| アクセス | 新大阪駅まで電車19分 大阪駅梅田駅まで電車13分 関西空港まで電車59分、車45分 伊丹空港まで車20分 高速入口:環状線南森町・扇町入口 |
||
| EV基数 | 1基 | 人荷EV基数 | - |
| 空調タイプ | 個別 | ||
| 備考 | |||

内外ともに施工されたコンクリート打ちっ放しと曲線と直線のバランスがよく組み合わされています。
- お電話でお問い合わせ(無料)
-
平日13時までのお問い合わせで
当日に物件をご紹介!
お電話の場合「物件番号:C202002」
をお伝えください
