お気に入りを解除しました。
堂北ビルディング(サンアール堂北)
物件番号:C303222
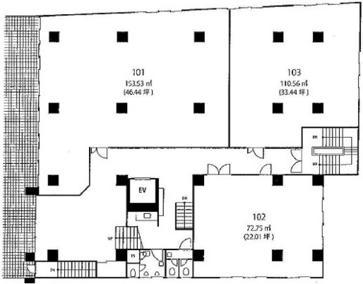
1階46.44坪

- この物件の賃料の価格帯(共益費込)
- 坪@12,001円~@15,000円
| 物件名 | 堂北ビルディング(サンアール堂北) 【このビルのその他の募集階】 続きを表示 ▼ |
||
|---|---|---|---|
| 住所 | 大阪府大阪市北区堂島2丁目3番2号 西梅田・堂島・福島でよく検索されるその他の物件 |
||
| 構造(規模) | 鉄筋コンクリート造地上7階地下1階建 | ||
| 築年月 | 1962年11月 | ||
| 坪数 |
46.44坪 |
||
| 階数 | 1階 | ||
| 保証金 | |||
| 敷金 | 賃料の6カ月分 | ||
| 礼金 | - | ||
| 沿線 最寄駅 |
地下鉄四つ橋線 西梅田駅 徒歩6分 (西梅田駅の賃貸事務所) JR東西線 北新地駅 徒歩4分 (北新地駅の賃貸事務所) JR大阪環状線 大阪駅 徒歩9分 (大阪駅の賃貸事務所) |
||
| アクセス | 新大阪駅まで電車15分 大阪駅梅田駅まで電車9分 関西空港まで電車61分、車45分 伊丹空港まで車20分 高速入口:環状線堂島・梅田入口 |
||
| EV基数 | 1基 | 人荷EV基数 | - |
| 空調タイプ | 個別 | ||
| 備考 | 2007年エントランスリニューアル。様々な広さに対応可能。コストパフォーマンスも高く、 西梅田で比較的お手頃な条件で人気の物件です。 |
||

大阪メトロ四つ橋線「西梅田駅」徒歩6分の立地に位置するビル。築年数は経っていますが、共用部がリニューアルされたのでそんなに古い印象はありません。
周辺には広告業や放送関係の会社が多く、クリエイティブな企業に好まれる立地です。
- お電話でお問い合わせ(無料)
-
平日13時までのお問い合わせで
当日に物件をご紹介!
お電話の場合「物件番号:C303222」
をお伝えください
