お気に入りを解除しました。
トヤマ東館
物件番号:A110113
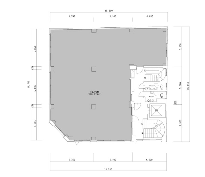
5階53.9坪

- この物件の賃料の価格帯(共益費込)
- この部屋は成約済みです
| 物件名 | トヤマ東館 【このビルのその他の募集階】 |
||
|---|---|---|---|
| 住所 | 大阪府大阪市中央区安土町1丁目5番11号 本町・堺筋本町でよく検索されるその他の物件 |
||
| 構造(規模) | 鉄骨造地上6階地下1階建 | ||
| 築年月 | 1972年1月1日 | ||
| 坪数 |
53.9坪 |
||
| 階数 | 5階 | ||
| 保証金 | - | ||
| 敷金 | - | ||
| 礼金 | - | ||
| 沿線 最寄駅 |
地下鉄堺筋線 堺筋本町駅 徒歩2分 (堺筋本町駅の賃貸事務所) 地下鉄中央線 堺筋本町駅 徒歩4分 (堺筋本町駅の賃貸事務所) 地下鉄御堂筋線 本町駅 徒歩8分 (本町駅の賃貸事務所) |
||
| アクセス | 新大阪駅まで電車19分 大阪駅梅田駅まで電車13分 関西空港まで電車53分、車52分 伊丹空港まで車20分 高速入口:環状線高麗橋・信濃橋入口 |
||
| EV基数 | 1基 | 人荷EV基数 | - |
| 空調タイプ | 個別 | ||
| 備考 | ・駅近 ・角ビル ・2005年11月リノベーション |
||

ビジネス街の中心地にあり、このビルの周辺には金融機関や飲食店などが充実しています。大阪メトロ堺筋線「堺筋本町駅」から徒歩2分、御堂筋線も利用可能。大通りから少し入ったところに位置するアクセス便利なオフィスビルです。
- お電話でお問い合わせ(無料)
-
平日13時までのお問い合わせで
当日に物件をご紹介!
お電話の場合「物件番号:A110113」
をお伝えください
