お気に入りを解除しました。
大手前類第一
物件番号:A301203
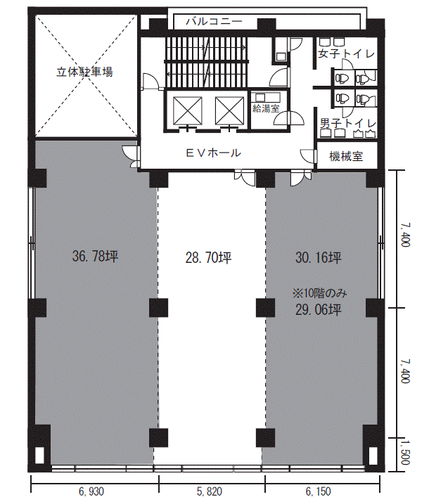
8階28.7坪

- この物件の賃料の価格帯(共益費込)
- この部屋は成約済みです
| 物件名 | 大手前類第一 【このビルのその他の募集階】 |
||
|---|---|---|---|
| 住所 | 大阪府大阪市中央区谷町2丁目2番20号 天満橋・谷町でよく検索されるその他の物件 |
||
| 構造(規模) | 鉄骨鉄筋コンクリート造 地上10階建 新耐震基準 | ||
| 築年月 | 1985年3月 | ||
| 坪数 |
28.7坪 |
||
| 階数 | 8階 | ||
| 保証金 | - | ||
| 敷金 | - | ||
| 礼金 | - | ||
| 沿線 最寄駅 |
地下鉄谷町線 天満橋駅 徒歩3分 (天満橋駅の賃貸事務所) 京阪線(本線・中之島線) 天満橋駅 徒歩4分 (天満橋駅の賃貸事務所) 地下鉄谷町線 谷町四丁目駅 徒歩3分 (谷町四丁目駅の賃貸事務所) |
||
| アクセス | 新大阪駅まで電車17分 大阪駅梅田駅まで電車11分 関西空港まで電車50分、車50分 伊丹空港まで車20分 高速入口:環状線高麗橋・法円坂入口 |
||
| EV基数 | 2基 | 人荷EV基数 | - |
| 空調タイプ | 個別 | ||
| 備考 | |||

谷町筋に面したボリューム感のあるビルです。
- お電話でお問い合わせ(無料)
-
平日13時までのお問い合わせで
当日に物件をご紹介!
お電話の場合「物件番号:A301203」
をお伝えください
