お気に入りを解除しました。
M global OSAKA Building
物件番号:A106429
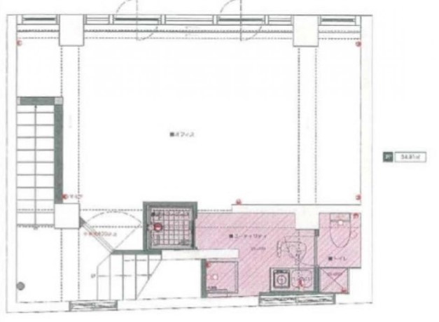
2階10.56坪

- この物件の賃料の価格帯(共益費込)
- この部屋は成約済みです
| 物件名 | M global OSAKA Building 【このビルのその他の募集階】 |
||
|---|---|---|---|
| 住所 | 大阪府大阪市中央区平野町4丁目3番4号 淀屋橋・北浜でよく検索されるその他の物件 |
||
| 構造(規模) | 鉄筋コンクリート造地上4階建 | ||
| 築年月 | 1958年1月1日 | ||
| 坪数 |
10.56坪 |
||
| 階数 | 2階 | ||
| 保証金 | - | ||
| 敷金 | - | ||
| 礼金 | - | ||
| 沿線 最寄駅 |
地下鉄御堂筋線 淀屋橋駅 徒歩3分 (淀屋橋駅の賃貸事務所) 地下鉄四つ橋線 肥後橋駅 徒歩5分 (肥後橋駅の賃貸事務所) 地下鉄御堂筋線 淀屋橋駅 徒歩6分 (淀屋橋駅の賃貸事務所) |
||
| アクセス | 新大阪駅まで電車12分 大阪駅梅田駅まで電車7分 関西空港まで電車52分、車49分 伊丹空港まで車22分 高速入口:環状線堂島・信濃橋入口 |
||
| EV基数 | - | 人荷EV基数 | - |
| 空調タイプ | 個別 | ||
| 備考 | ・1フロア1テナント ・2015年リニューアル済み |
||

2015年にリニューアルされたリノベーション物件。ワンフロアワンテナントで事務所で店舗でも使用可能。エレベーターはないですがそんなことも気にしないほど個性的で、なかなか空きがでません。空室が出ればすぐに要チェックです!
- お電話でお問い合わせ(無料)
-
平日13時までのお問い合わせで
当日に物件をご紹介!
お電話の場合「物件番号:A106429」
をお伝えください
