お気に入りを解除しました。
CAMCO西本町(旧大阪本町西第一)
物件番号:B201201
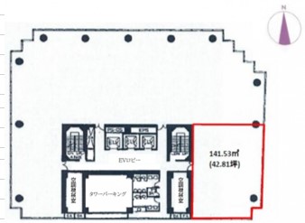
11階42.81坪

- この物件の賃料の価格帯(共益費込)
- この部屋は成約済みです
| 物件名 | CAMCO西本町(旧大阪本町西第一) 【このビルのその他の募集階】 |
||
|---|---|---|---|
| 住所 | 大阪府大阪市西区阿波座2丁目1番1号 肥後橋・本町・阿波座でよく検索されるその他の物件 |
||
| 構造(規模) | 鉄骨鉄筋コンクリート造地上11階地下1階建 | ||
| 築年月 | 1987年3月 | ||
| 坪数 |
42.81坪 |
||
| 階数 | 11階 | ||
| 保証金 | - | ||
| 敷金 | - | ||
| 礼金 | - | ||
| 沿線 最寄駅 |
地下鉄四つ橋線 本町駅 徒歩3分 (本町駅の賃貸事務所) 地下鉄中央線 阿波座駅 徒歩5分 (阿波座駅の賃貸事務所) 地下鉄御堂筋線 本町駅 徒歩5分 (本町駅の賃貸事務所) |
||
| アクセス | 新大阪駅まで電車18分 大阪駅梅田駅まで電車12分 関西空港まで電車57分、車45分 伊丹空港まで車20分 高速入口:環状線信濃橋・阿波座入口 |
||
| EV基数 | 3基 | 人荷EV基数 | - |
| 空調タイプ | 個別 | ||
| 備考 | |||

中央大通となにわ筋の交差点に位置する大型ハイグレードオフィスビル。設備も充実して採光、眺望共に抜群です。
- お電話でお問い合わせ(無料)
-
平日13時までのお問い合わせで
当日に物件をご紹介!
お電話の場合「物件番号:B201201」
をお伝えください

