お気に入りを解除しました。
大阪松田
物件番号:A101216
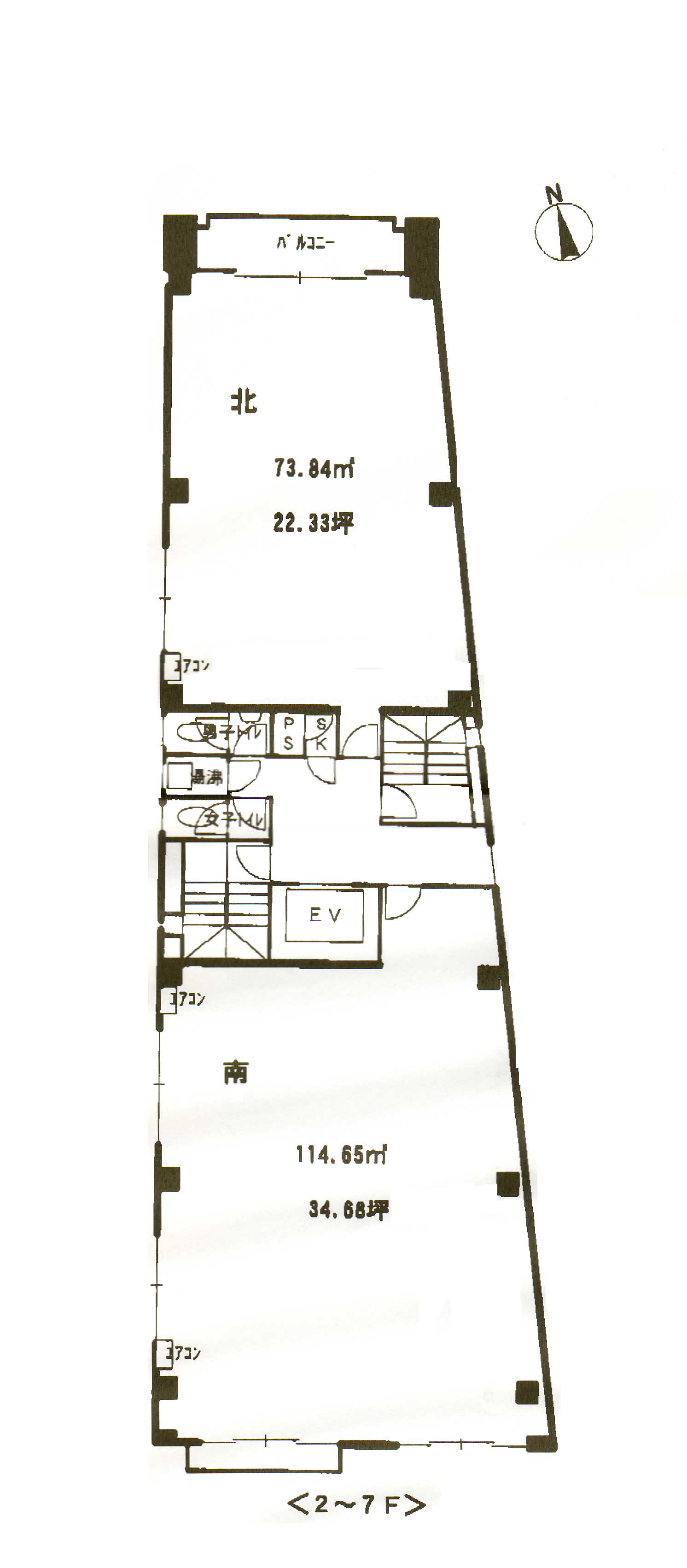
2階34.6坪

- この物件の賃料の価格帯(共益費込)
- この部屋は成約済みです
| 物件名 | 大阪松田 【このビルのその他の募集階】 |
||
|---|---|---|---|
| 住所 | 大阪府大阪市中央区北浜2丁目3番10号 淀屋橋・北浜でよく検索されるその他の物件 |
||
| 構造(規模) | 鉄骨造地上9階地下1階建 | ||
| 築年月 | 1982年1月1日 | ||
| 坪数 |
34.6坪 |
||
| 階数 | 2階 | ||
| 保証金 | - | ||
| 敷金 | - | ||
| 礼金 | - | ||
| 沿線 最寄駅 |
地下鉄堺筋線 北浜駅 徒歩2分 (北浜駅の賃貸事務所) 地下鉄御堂筋線 淀屋橋駅 徒歩4分 (淀屋橋駅の賃貸事務所) 京阪線(本線・中之島線) 北浜駅 徒歩2分 (北浜駅の賃貸事務所) |
||
| アクセス | 新大阪駅まで電車12分 大阪駅梅田駅まで電車7分 伊丹空港まで車25分 高速入口:環状線高麗橋入口 |
||
| EV基数 | 1基 | 人荷EV基数 | - |
| 空調タイプ | 個別 | ||
| 備考 | 敷金無し、礼金のみ2ヵ月。 | ||

大阪松田ビルは北浜駅徒歩1分の立地に位置するビルです。駅の出口が真ん前にあり、堺筋から10メートルほど西に入った立地に建っているため、来客の方にも説明がしやすいビルになります。北側と南側に一室ずつあるワンフロアー2テナントですので、周りのお客様も気になりません。
- お電話でお問い合わせ(無料)
-
平日13時までのお問い合わせで
当日に物件をご紹介!
お電話の場合「物件番号:A101216」
をお伝えください

