お気に入りを解除しました。
CARP南船場第1
物件番号:A205202
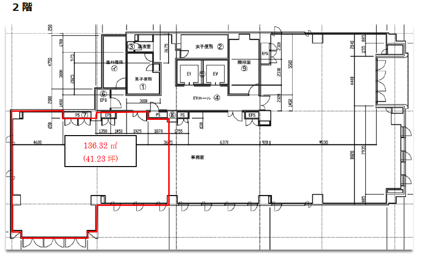
2階41.23坪

- この物件の賃料の価格帯(共益費込)
- この部屋は成約済みです
| 物件名 | CARP南船場第1 【このビルのその他の募集階】 |
||
|---|---|---|---|
| 住所 | 大阪府大阪市中央区南船場2丁目1番10号 心斎橋・長堀橋でよく検索されるその他の物件 |
||
| 構造(規模) | 鉄骨鉄筋コンクリート造地上9階建 | ||
| 築年月 | 1993年3月1日 | ||
| 坪数 |
41.23坪 |
||
| 階数 | 2階 | ||
| 保証金 | - | ||
| 敷金 | - | ||
| 礼金 | - | ||
| 沿線 最寄駅 |
地下鉄堺筋線 長堀橋駅 徒歩3分 (長堀橋駅の賃貸事務所) 地下鉄長堀鶴見緑地線 長堀橋駅 徒歩3分 (長堀橋駅の賃貸事務所) 地下鉄堺筋線 堺筋本町駅 徒歩5分 (堺筋本町駅の賃貸事務所) |
||
| アクセス | 新大阪駅まで電車20分 大阪駅梅田駅まで電車14分 関西空港まで電車50分、車50分 伊丹空港まで車25分 高速入口:環状線長堀入口 |
||
| EV基数 | 2基 | 人荷EV基数 | - |
| 空調タイプ | 個別 | ||
| 備考 | |||

1993年築の新耐震基準のオフィスビル。石張りの外観で重厚感もあり、共用部の雰囲気は落ち着いた印象で管理も行き届いています。ビルに駐輪場と駐車場が併設されていますので利便性が◎ 貸室は100坪台から20坪台までバラエティ豊富な広さが魅力です。
- お電話でお問い合わせ(無料)
-
平日13時までのお問い合わせで
当日に物件をご紹介!
お電話の場合「物件番号:A205202」
をお伝えください
