お気に入りを解除しました。
奥内立売堀
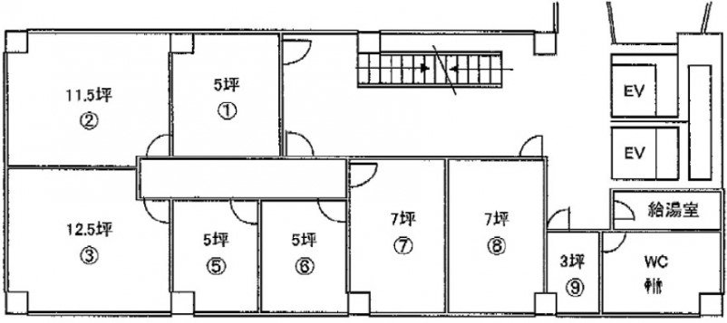
物件番号:B202408
3階5坪

- この物件の賃料の価格帯(共益費込)
- この部屋は成約済みです
| 物件名 | 奥内立売堀 【このビルのその他の募集階】 |
||
|---|---|---|---|
| 住所 | 大阪府大阪市西区立売堀4丁目7番15号 肥後橋・本町・阿波座でよく検索されるその他の物件 |
||
| 構造(規模) | 鉄骨鉄筋コンクリート造地上10階建 | ||
| 築年月 | 1976年1月 | ||
| 坪数 |
5坪 |
||
| 階数 | 3階 | ||
| 保証金 | - | ||
| 敷金 | - | ||
| 礼金 | - | ||
| 沿線 最寄駅 |
地下鉄中央線 阿波座駅 徒歩2分 (阿波座駅の賃貸事務所) 地下鉄千日前線 阿波座駅 徒歩2分 (阿波座駅の賃貸事務所) 地下鉄長堀鶴見緑地線 西長堀駅 徒歩6分 (西長堀駅の賃貸事務所) |
||
| アクセス | 新大阪駅まで電車17分 大阪駅梅田駅まで電車11分 関西空港まで電車57分、車45分 伊丹空港まで車20分 高速入口:環状線阿波座・西長堀・中之島西入口 |
||
| EV基数 | 2基 | 人荷EV基数 | - |
| 空調タイプ | 集中 | ||
| 備考 | 3ヶ月 | ||
- お電話でお問い合わせ(無料)
-
平日13時までのお問い合わせで
当日に物件をご紹介!
お電話の場合「物件番号:B202408」
をお伝えください
