お気に入りを解除しました。
京阪神瓦町
物件番号:A108401
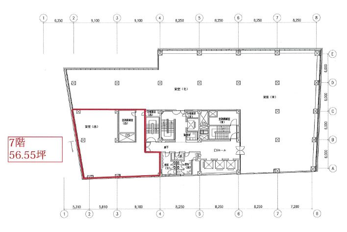
7階56.55坪
- この物件の賃料の価格帯(共益費込)
- この部屋は成約済みです
| 物件名 | 京阪神瓦町 【このビルのその他の募集階】 |
||
|---|---|---|---|
| 住所 | 大阪府大阪市中央区瓦町4丁目2番14号 淀屋橋・北浜・本町・堺筋本町でよく検索されるその他の物件 |
||
| 構造(規模) | 鉄骨鉄筋コンクリート造地上9階地下3階建 | ||
| 築年月 | 1962年4月1日 | ||
| 坪数 |
56.55坪 |
||
| 階数 | 7階 | ||
| 保証金 | - | ||
| 敷金 | - | ||
| 礼金 | - | ||
| 沿線 最寄駅 |
地下鉄御堂筋線 本町駅 徒歩2分 (本町駅の賃貸事務所) 地下鉄中央線 本町駅 徒歩4分 (本町駅の賃貸事務所) 地下鉄四つ橋線 本町駅 徒歩5分 (本町駅の賃貸事務所) |
||
| アクセス | 新大阪駅まで電車13分 大阪駅梅田駅まで電車7分 関西空港まで電車52分、車50分 伊丹空港まで車25分 高速入口:環状線信濃橋・阿波座 |
||
| EV基数 | 3基 | 人荷EV基数 | 1基 |
| 空調タイプ | 集中+個別 | ||
| 備考 | ・駅近・大通り沿い ・角ビル・新耐震基準適合 ・エレベーター4基 ・食堂&喫茶室 ・貸倉庫・貸出自転車(無料) |
||

大阪メトロ御堂筋線「本町駅」徒歩2分の立地に位置するビル。御堂筋に面し、長老格の趣あるアンティークさを感じさせる造りになっています。平成11年のリニューアルで設備面も充実し、ビル内地下1階には食堂・喫茶などを完備するオールマイティーさを兼ね備えています。無料貸自転車の用意がありますので駐輪場の心配なし!
- お電話でお問い合わせ(無料)
-
平日13時までのお問い合わせで
当日に物件をご紹介!
お電話の場合「物件番号:A108401」
をお伝えください
