お気に入りを解除しました。
郵政福祉心斎橋
物件番号:A205356
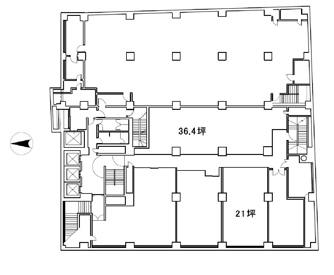
地下1階21坪

- この物件の賃料の価格帯(共益費込)
- この部屋は成約済みです
| 物件名 | 郵政福祉心斎橋 【このビルのその他の募集階】 |
||
|---|---|---|---|
| 住所 | 大阪府大阪市中央区南船場3丁目11番18号 心斎橋・長堀橋でよく検索されるその他の物件 |
||
| 構造(規模) | 鉄骨鉄筋コンクリート造地上11階地下2階建 | ||
| 築年月 | 1983年11月1日 | ||
| 坪数 |
21坪 |
||
| 階数 | 地下1階 | ||
| 保証金 | - | ||
| 敷金 | - | ||
| 礼金 | - | ||
| 沿線 最寄駅 |
地下鉄御堂筋線 心斎橋駅 徒歩2分 (心斎橋駅の賃貸事務所) 地下鉄長堀鶴見緑地線 心斎橋駅 徒歩2分 (心斎橋駅の賃貸事務所) 地下鉄四つ橋線 四ツ橋駅 徒歩6分 (四ツ橋駅の賃貸事務所) |
||
| アクセス | 新大阪駅まで電車15分 大阪駅梅田駅まで電車9分 関西空港まで電車49分、車46分 伊丹空港まで車25分 高速入口:環状線信濃橋・阿波座 |
||
| EV基数 | 3基 | 人荷EV基数 | 1基 |
| 空調タイプ | 個別 | ||
| 備考 | |||

大阪メトロ御堂筋線「心斎橋駅」徒歩2分の立地に位置する御堂筋に面したビル。1階に郵便局とブランド店が入居しているため目印になります。20坪~200坪まで様々な広さがご用意できるため、幅広いニーズにお答えできます。
- お電話でお問い合わせ(無料)
-
平日13時までのお問い合わせで
当日に物件をご紹介!
お電話の場合「物件番号:A205356」
をお伝えください
