お気に入りを解除しました。
Tria心斎橋(旧NK)
物件番号:A205253
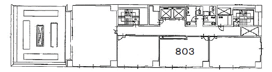
8階10.81坪

- この物件の賃料の価格帯(共益費込)
- この部屋は成約済みです
| 物件名 | Tria心斎橋(旧NK) 【このビルのその他の募集階】 |
||
|---|---|---|---|
| 住所 | 大阪府大阪市中央区南船場2丁目10番28号 心斎橋・長堀橋でよく検索されるその他の物件 |
||
| 構造(規模) | 鉄骨鉄筋コンクリート造地上9階建 | ||
| 築年月 | 1986年7月1日 | ||
| 坪数 |
10.81坪 |
||
| 階数 | 8階 | ||
| 保証金 | - | ||
| 敷金 | - | ||
| 礼金 | - | ||
| 沿線 最寄駅 |
地下鉄堺筋線 長堀橋駅 徒歩4分 (長堀橋駅の賃貸事務所) 地下鉄長堀鶴見緑地線 長堀橋駅 徒歩4分 (長堀橋駅の賃貸事務所) 地下鉄御堂筋線 心斎橋駅 徒歩6分 (心斎橋駅の賃貸事務所) |
||
| アクセス | 新大阪駅まで電車18分 大阪駅梅田駅まで電車12分 関西空港まで電車50分、車50分 伊丹空港まで車25分 高速入口:環状線長堀入口 |
||
| EV基数 | 2基 | 人荷EV基数 | - |
| 空調タイプ | 個別 | ||
| 備考 | |||
カーテンウオールと白いタイル張りの外観が特徴。1階には花屋が入居しておりビルの雰囲気を良くしてくれています。貸室は細かく分割された部屋が多いので新規独立で事務所を探されいるお客様にオススメです。
- お電話でお問い合わせ(無料)
-
平日13時までのお問い合わせで
当日に物件をご紹介!
お電話の場合「物件番号:A205253」
をお伝えください
