お気に入りを解除しました。
新大阪サンアールビル北館
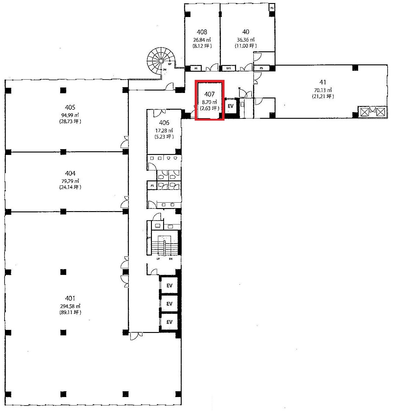
物件番号:D101550
4階2.63坪

- この物件の賃料の価格帯(共益費込)
- 坪@8,001円~@12,000円
| 物件名 | 新大阪サンアールビル北館 【このビルのその他の募集階】 |
||
|---|---|---|---|
| 住所 | 大阪府大阪市淀川区西中島5丁目8番3号 新大阪・西中島でよく検索されるその他の物件 |
||
| 構造(規模) | 鉄骨鉄筋コンクリート造地上10階建 | ||
| 築年月 | 1985年1月1日 | ||
| 坪数 |
2.63坪 |
||
| 階数 | 4階 | ||
| 保証金 | |||
| 敷金 | 賃料の6カ月分 | ||
| 礼金 | - | ||
| 沿線 最寄駅 |
地下鉄御堂筋線 西中島南方駅 徒歩4分 (西中島南方駅の賃貸事務所) 地下鉄御堂筋線 新大阪駅 徒歩4分 (新大阪駅の賃貸事務所) JR東海道本線 新大阪駅 徒歩4分 (新大阪駅の賃貸事務所) |
||
| アクセス | 新大阪駅まで電車4分 大阪駅梅田駅まで電車8分 関西空港まで電車62分、車50分 伊丹空港まで車20分 高速入口:11号線加島入口 |
||
| EV基数 | 3基 | 人荷EV基数 | - |
| 空調タイプ | 個別 | ||
| 備考 | |||

地下鉄・JR・阪急の3線利用可能な好ロケーション。2016年に全館リニューアル工事を行っており築年数を感じさせない仕上がりになりました。大通りから中に入っているため周辺環境も静か、貸室はSOHO向けの4坪~大規模198坪まで各タイプあります。
- お電話でお問い合わせ(無料)
-
平日13時までのお問い合わせで
当日に物件をご紹介!
お電話の場合「物件番号:D101550」
をお伝えください
