お気に入りを解除しました。
あべの旭町
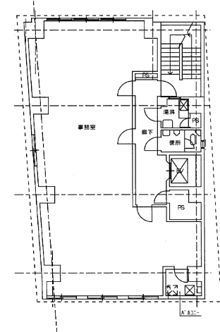
物件番号:N302108
6階39.43坪

- この物件の賃料の価格帯(共益費込)
- 坪@15,001円~@20,000円
| 物件名 | あべの旭町 【このビルのその他の募集階】 |
||
|---|---|---|---|
| 住所 | 大阪府大阪市阿倍野区旭町1丁目1番14号 天満橋・谷町でよく検索されるその他の物件 |
||
| 構造(規模) | 鉄骨鉄筋コンクリート造地下1階地上9階建 | ||
| 築年月 | 1980年2月 | ||
| 坪数 |
39.43坪 |
||
| 階数 | 6階 | ||
| 保証金 | |||
| 敷金 | 賃料の10カ月分 | ||
| 礼金 | - | ||
| 沿線 最寄駅 |
地下鉄御堂筋線 天王寺駅 徒歩3分 (天王寺駅の賃貸事務所) JR大阪環状線 天王寺駅 徒歩3分 (天王寺駅の賃貸事務所) 地下鉄谷町線 天王寺駅 徒歩3分 (天王寺駅の賃貸事務所) |
||
| アクセス | 新大阪駅まで電車21分 大阪駅梅田駅まで電車15分 関西空港まで電車40分、車40分 伊丹空港まで車35分 高速入口:阿倍野・文の里入口 |
||
| EV基数 | 1基 | 人荷EV基数 | - |
| 空調タイプ | 個別 | ||
| 備考 | |||
- お電話でお問い合わせ(無料)
-
平日13時までのお問い合わせで
当日に物件をご紹介!
お電話の場合「物件番号:N302108」
をお伝えください

