お気に入りを解除しました。
山本
物件番号:I1023003
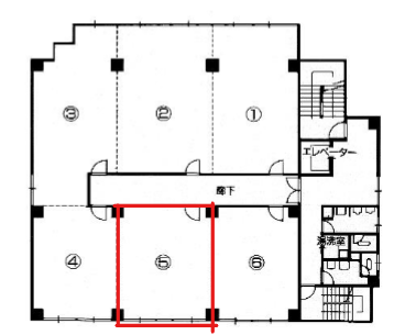
4階12.3坪

- この物件の賃料の価格帯(共益費込)
- 坪@3,000円~@8,000円
| 物件名 | 山本 【このビルのその他の募集階】 続きを表示 ▼ |
||
|---|---|---|---|
| 住所 | 大阪府吹田市垂水町3丁目4番27号 江坂・千里中央・箕面でよく検索されるその他の物件 |
||
| 構造(規模) | 鉄骨造地上6階建 | ||
| 築年月 | 1987年10月1日 | ||
| 坪数 |
12.3坪 |
||
| 階数 | 4階 | ||
| 保証金 | 総額738,000円(@60,000円/坪) | ||
| 敷金 | - | ||
| 礼金 | - | ||
| 沿線 最寄駅 |
地下鉄御堂筋線 江坂駅 徒歩12分 (江坂駅の賃貸事務所) |
||
| アクセス | 新大阪駅まで電車20分 大阪駅梅田駅まで電車26分 関西空港まで電車76分、車55分 伊丹空港まで車15分 高速入口:豊中・豊中南入口 |
||
| EV基数 | 1基 | 人荷EV基数 | - |
| 空調タイプ | 個別 | ||
| 備考 | |||
- お電話でお問い合わせ(無料)
-
平日13時までのお問い合わせで
当日に物件をご紹介!
お電話の場合「物件番号:I1023003」
をお伝えください

