お気に入りを解除しました。
福島サンアール11号館
物件番号:H101113
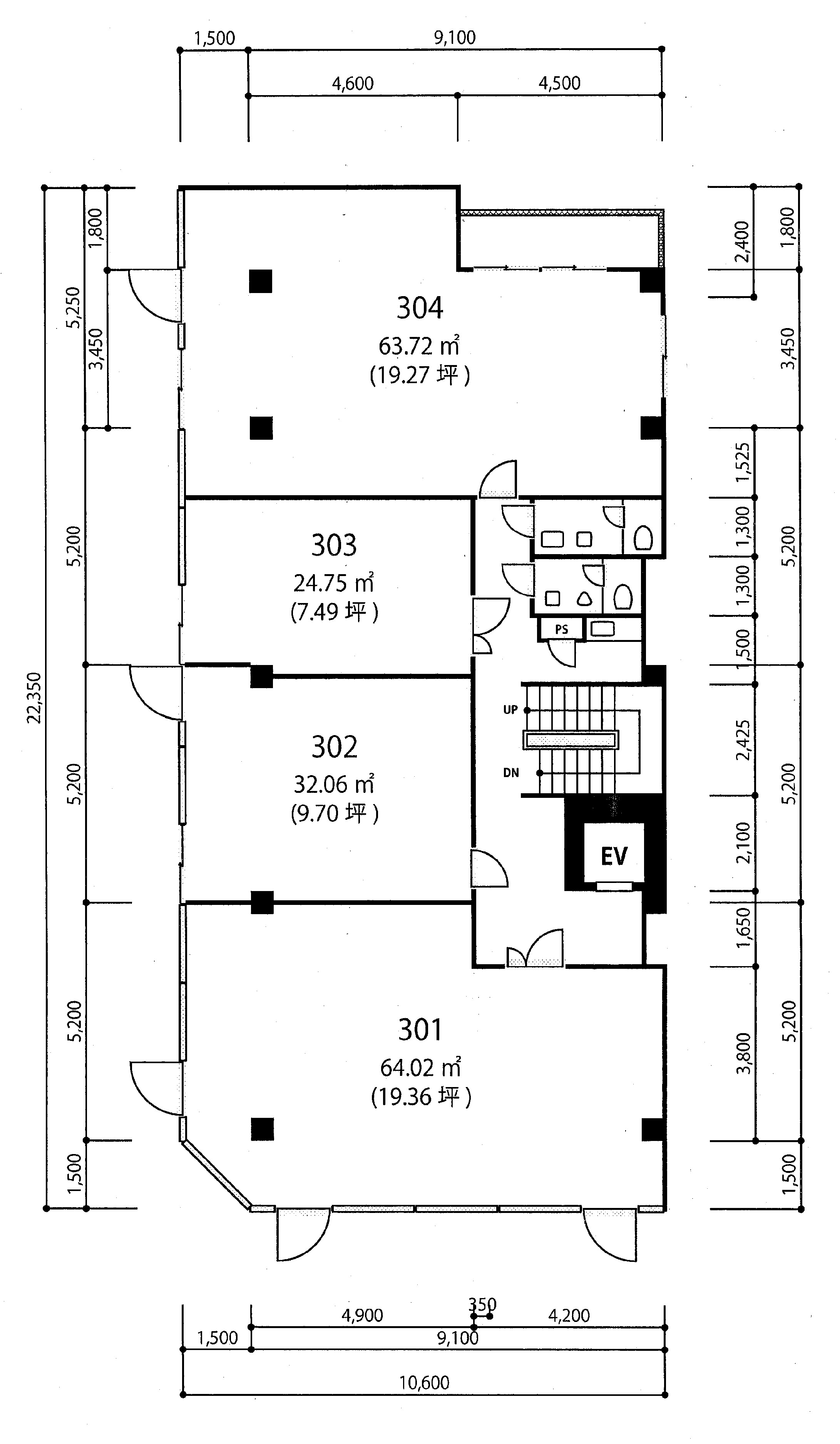
3階19.28坪

- この物件の賃料の価格帯(共益費込)
- 坪@8,001円~@12,000円
| 物件名 | 福島サンアール11号館 【このビルのその他の募集階】 |
||
|---|---|---|---|
| 住所 | 大阪府大阪市福島区福島1丁目3番11号 西梅田・堂島・福島でよく検索されるその他の物件 |
||
| 構造(規模) | 鉄骨造地上5階建 | ||
| 築年月 | 1991年8月 | ||
| 坪数 |
19.28坪 |
||
| 階数 | 3階 | ||
| 保証金 | 総額1,156,800円(@60,000円/坪) | ||
| 敷金 | - | ||
| 礼金 | - | ||
| 沿線 最寄駅 |
地下鉄四つ橋線 西梅田駅 徒歩10分 (西梅田駅の賃貸事務所) JR東西線 新福島駅 徒歩4分 (新福島駅の賃貸事務所) JR大阪環状線 福島駅 徒歩7分 (福島駅の賃貸事務所) |
||
| アクセス | 新大阪駅まで電車16分 大阪駅梅田駅まで電車8分 関西空港まで電車60分、車45分 伊丹空港まで車20分 高速入口:福島・梅田入口 |
||
| EV基数 | 1基 | 人荷EV基数 | - |
| 空調タイプ | 個別 | ||
| 備考 | |||
- お電話でお問い合わせ(無料)
-
平日13時までのお問い合わせで
当日に物件をご紹介!
お電話の場合「物件番号:H101113」
をお伝えください
