お気に入りを解除しました。
ナンバグランド
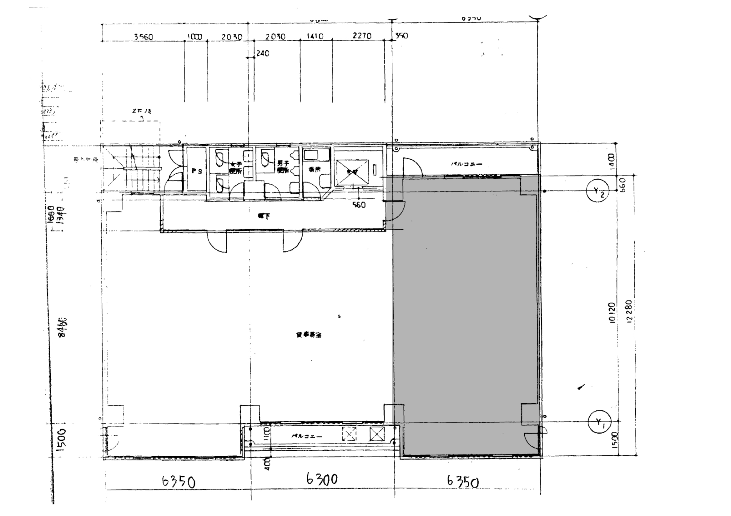
物件番号:F201304
5階30坪

- この物件の賃料の価格帯(共益費込)
- 坪@8,001円~@12,000円
| 物件名 | ナンバグランド 【このビルのその他の募集階】 |
||
|---|---|---|---|
| 住所 | 大阪府大阪市浪速区難波中3丁目6番12号 なんば・日本橋でよく検索されるその他の物件 |
||
| 構造(規模) | 鉄骨鉄筋コンクリート造地上9階建 | ||
| 築年月 | 1985年1月1日 | ||
| 坪数 |
30坪 |
||
| 階数 | 5階 | ||
| 保証金 | 総額3,000,000円(@100,000円/坪) | ||
| 敷金 | - | ||
| 礼金 | - | ||
| 沿線 最寄駅 |
地下鉄四つ橋線 なんば駅 徒歩4分 (なんば駅の賃貸事務所) 地下鉄御堂筋線 なんば駅 徒歩6分 (なんば駅の賃貸事務所) JR大和路線 JR難波駅 徒歩6分 (JR難波駅の賃貸事務所) |
||
| アクセス | 新大阪駅まで電車21分 大阪駅梅田駅まで電車15分 関西空港まで電車48分、車40分 伊丹空港まで車20分 高速入口:環状線湊町・高津入口 |
||
| EV基数 | 1基 | 人荷EV基数 | - |
| 空調タイプ | 個別 | ||
| 備考 | |||
- お電話でお問い合わせ(無料)
-
平日13時までのお問い合わせで
当日に物件をご紹介!
お電話の場合「物件番号:F201304」
をお伝えください

