お気に入りを解除しました。
難波室町
物件番号:F201120
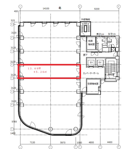
8階13.69坪

- この物件の賃料の価格帯(共益費込)
- この部屋は成約済みです
| 物件名 | 難波室町 【このビルのその他の募集階】 |
||
|---|---|---|---|
| 住所 | 大阪府大阪市浪速区難波中1丁目12番5号 なんば・日本橋でよく検索されるその他の物件 |
||
| 構造(規模) | 鉄骨鉄筋コンクリート造地上8階地下1階建 | ||
| 築年月 | 1988年3月15日 | ||
| 坪数 |
13.69坪 |
||
| 階数 | 8階 | ||
| 保証金 | - | ||
| 敷金 | - | ||
| 礼金 | - | ||
| 沿線 最寄駅 |
地下鉄御堂筋線 なんば駅 徒歩4分 (なんば駅の賃貸事務所) 地下鉄四つ橋線 なんば駅 徒歩2分 (なんば駅の賃貸事務所) 近鉄線 大阪難波駅 徒歩4分 (大阪難波駅の賃貸事務所) |
||
| アクセス | 新大阪駅まで電車19分 大阪駅梅田駅まで電車13分 関西空港まで電車47分、車40分 伊丹空港まで車20分 高速入口:環状線湊町・汐見橋入口 |
||
| EV基数 | 2基 | 人荷EV基数 | - |
| 空調タイプ | 個別 | ||
| 備考 | |||

御堂筋線【なんば駅】徒歩4分のビル。グレーの外観と白を基調としたエントランスが目をひくビルです。四つ橋筋に面しているため、立地の説明もしやすいので求人効果が期待できます。
- お電話でお問い合わせ(無料)
-
平日13時までのお問い合わせで
当日に物件をご紹介!
お電話の場合「物件番号:F201120」
をお伝えください
類似物件のご紹介
おおきに西心斎橋Birthplace(旧GATO WEST)
-
-
住所 中央区西心斎橋2丁目13番18号 交通 近鉄線 大阪難波駅 徒歩5分
地下鉄御堂筋線 なんば駅 徒歩6分
地下鉄御堂筋線 心斎橋駅 徒歩7分
竣工 2001年7月1日 構造 SRC地上8階地下1階

