お気に入りを解除しました。
なんばアリーナ
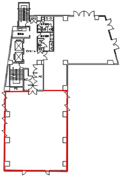
物件番号:F201107
8階59.71坪
- この物件の賃料の価格帯(共益費込)
- この部屋は成約済みです
| 物件名 | なんばアリーナ 【このビルのその他の募集階】 |
||
|---|---|---|---|
| 住所 | 大阪府大阪市浪速区難波中1丁目13番8号 なんば・日本橋でよく検索されるその他の物件 |
||
| 構造(規模) | 鉄骨鉄筋コンクリート造地上9階地下1階建 | ||
| 築年月 | 1991年1月1日 | ||
| 坪数 |
59.71坪 |
||
| 階数 | 8階 | ||
| 保証金 | - | ||
| 敷金 | - | ||
| 礼金 | - | ||
| 沿線 最寄駅 |
地下鉄四つ橋線 なんば駅 徒歩3分 (なんば駅の賃貸事務所) 地下鉄御堂筋線 なんば駅 徒歩4分 (なんば駅の賃貸事務所) 近鉄線 大阪難波駅 徒歩5分 (大阪難波駅の賃貸事務所) |
||
| アクセス | 新大阪駅まで電車20分 大阪駅梅田駅まで電車15分 関西空港まで電車47分、車40分 伊丹空港まで車20分 高速入口:環状線湊町・汐見橋入口 |
||
| EV基数 | 2基 | 人荷EV基数 | - |
| 空調タイプ | 個別 | ||
| 備考 | |||

大阪府立体育会館の向かいに位置するビル。1991年竣工の身体新基準のビルです。近鉄線「難波駅」から徒歩5分、6路線が利用できるのでアクセスは抜群です。ショッピングモールのなんばCITYや郵便局が近いので利便性があります。
- お電話でお問い合わせ(無料)
-
平日13時までのお問い合わせで
当日に物件をご紹介!
お電話の場合「物件番号:F201107」
をお伝えください

