お気に入りを解除しました。
ハイランド
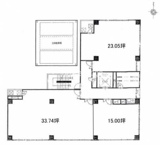
物件番号:D204205
4階23.05坪

- この物件の賃料の価格帯(共益費込)
- この部屋は成約済みです
| 物件名 | ハイランド 【このビルのその他の募集階】 |
||
|---|---|---|---|
| 住所 | 大阪府大阪市淀川区東三国2丁目34番1号 新大阪・西中島でよく検索されるその他の物件 |
||
| 構造(規模) | 鉄骨鉄筋コンクリート造地上8階建 | ||
| 築年月 | 1992年10月1日 | ||
| 坪数 |
23.05坪 |
||
| 階数 | 4階 | ||
| 保証金 | - | ||
| 敷金 | - | ||
| 礼金 | - | ||
| 沿線 最寄駅 |
地下鉄御堂筋線 東三国駅 徒歩3分 (東三国駅の賃貸事務所) 地下鉄御堂筋線 新大阪駅 徒歩11分 (新大阪駅の賃貸事務所) JR東海道本線 新大阪駅 徒歩11分 (新大阪駅の賃貸事務所) |
||
| アクセス | 新大阪駅まで電車5分 大阪駅梅田駅まで電車9分 関西空港まで電車67分、車50分 伊丹空港まで車20分 高速入口:11号線加島入口 |
||
| EV基数 | 1基 | 人荷EV基数 | - |
| 空調タイプ | 個別 | ||
| 備考 | |||
- お電話でお問い合わせ(無料)
-
平日13時までのお問い合わせで
当日に物件をご紹介!
お電話の場合「物件番号:D204205」
をお伝えください

