お気に入りを解除しました。
KDX新大阪
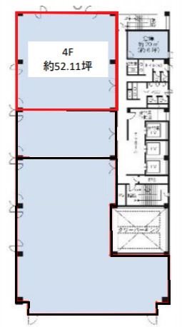
物件番号:D201402
4階52.1坪
- この物件の賃料の価格帯(共益費込)
- この部屋は成約済みです
| 物件名 | KDX新大阪 【このビルのその他の募集階】 |
||
|---|---|---|---|
| 住所 | 大阪府大阪市淀川区宮原4丁目1番4号 新大阪・西中島でよく検索されるその他の物件 |
||
| 構造(規模) | 鉄骨鉄筋コンクリート造地上11階地下1階建 | ||
| 築年月 | 1992年5月30日 | ||
| 坪数 |
52.1坪 |
||
| 階数 | 4階 | ||
| 保証金 | - | ||
| 敷金 | - | ||
| 礼金 | - | ||
| 沿線 最寄駅 |
地下鉄御堂筋線 新大阪駅 徒歩3分 (新大阪駅の賃貸事務所) 地下鉄御堂筋線 東三国駅 徒歩8分 (東三国駅の賃貸事務所) JR東海道本線 新大阪駅 徒歩4分 (新大阪駅の賃貸事務所) |
||
| アクセス | 新大阪駅まで電車3分 大阪駅梅田駅まで電車7分 関西空港まで電車64分、車50分 伊丹空港まで車20分 高速入口:11号線加島入口 |
||
| EV基数 | 2基 | 人荷EV基数 | 1基 |
| 空調タイプ | 個別 | ||
| 備考 | |||

大阪メトロ御堂筋線「新大阪駅」徒歩3分の立地に位置するビル。エントランスは吹き抜けで床・壁は白を基調としており、清潔感があります。基準階面積約175坪の貸室は約27坪~分割が可能で、貸室は無柱空間で使い勝手がよく設備も充実しています。
- お電話でお問い合わせ(無料)
-
平日13時までのお問い合わせで
当日に物件をご紹介!
お電話の場合「物件番号:D201402」
をお伝えください
