お気に入りを解除しました。
新大阪上野東洋
物件番号:D101712
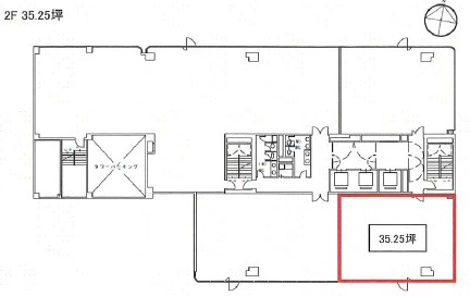
2階35.25坪

- この物件の賃料の価格帯(共益費込)
- この部屋は成約済みです
| 物件名 | 新大阪上野東洋 【このビルのその他の募集階】 |
||
|---|---|---|---|
| 住所 | 大阪府大阪市淀川区西中島7丁目4番17号 新大阪・西中島でよく検索されるその他の物件 |
||
| 構造(規模) | 鉄骨鉄筋コンクリート造地上12階建 | ||
| 築年月 | 1988年4月1日 | ||
| 坪数 |
35.25坪 |
||
| 階数 | 2階 | ||
| 保証金 | - | ||
| 敷金 | - | ||
| 礼金 | - | ||
| 沿線 最寄駅 |
地下鉄御堂筋線 新大阪駅 徒歩3分 (新大阪駅の賃貸事務所) JR東海道本線 新大阪駅 徒歩4分 (新大阪駅の賃貸事務所) 地下鉄御堂筋線 西中島南方駅 徒歩5分 (西中島南方駅の賃貸事務所) |
||
| アクセス | 新大阪駅まで電車3分 大阪駅梅田駅まで電車6分 関西空港まで電車62分、車50分 伊丹空港まで車20分 高速入口:11号線加島入口 |
||
| EV基数 | 3基 | 人荷EV基数 | - |
| 空調タイプ | 個別 | ||
| 備考 | |||

新御堂筋に面し、各線新大阪駅徒歩5分以内の好立地。基準階面積も約200坪の大型ビルで、エレベーターは3基、共用部の改修も実施し設備も充実しています。30坪代の分割した貸室もありグレードアップ移転や、好立地を生かした立地改善の移転も行いやすくオススメです。
- お電話でお問い合わせ(無料)
-
平日13時までのお問い合わせで
当日に物件をご紹介!
お電話の場合「物件番号:D101712」
をお伝えください
