お気に入りを解除しました。
新大阪トヨタ
物件番号:D101536
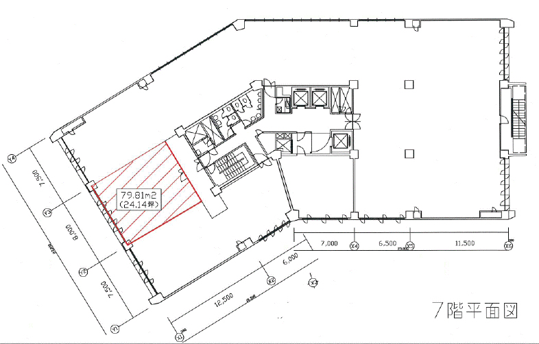
7階18.03坪

- この物件の賃料の価格帯(共益費込)
- 相談
| 物件名 | 新大阪トヨタ 【このビルのその他の募集階】 |
||
|---|---|---|---|
| 住所 | 大阪府大阪市淀川区西中島5丁目14番10号 新大阪・西中島でよく検索されるその他の物件 |
||
| 構造(規模) | 鉄骨鉄筋コンクリート造地上11階地下1階建 | ||
| 築年月 | 1978年 | ||
| 坪数 |
18.03坪 |
||
| 階数 | 7階 | ||
| 保証金 | |||
| 敷金 | 相談 | ||
| 礼金 | - | ||
| 沿線 最寄駅 |
地下鉄御堂筋線 新大阪駅 徒歩2分 (新大阪駅の賃貸事務所) JR東海道本線 新大阪駅 徒歩2分 (新大阪駅の賃貸事務所) 地下鉄御堂筋線 西中島南方駅 徒歩6分 (西中島南方駅の賃貸事務所) |
||
| アクセス | 新大阪駅まで電車3分 大阪駅梅田駅まで電車7分 関西空港まで電車63分、車50分 伊丹空港まで車20分 高速入口:11号線加島入口 |
||
| EV基数 | 2基 | 人荷EV基数 | 1基 |
| 空調タイプ | 個別 | ||
| 備考 | |||

新大阪駅目の前、好環境のオフィスビル。ビルの名前通り1階にはトヨタレンタカーが入居しており、営業車の利用にも大変便利です。エントランス部分はリニューアル工事を行っており築年数を感じさせません。大小バリエーション豊かな坪数に貸し倉庫なども有り、色々な場面に対応した物件です。
- お電話でお問い合わせ(無料)
-
平日13時までのお問い合わせで
当日に物件をご紹介!
お電話の場合「物件番号:D101536」
をお伝えください
