お気に入りを解除しました。
第7新大阪
物件番号:D101516
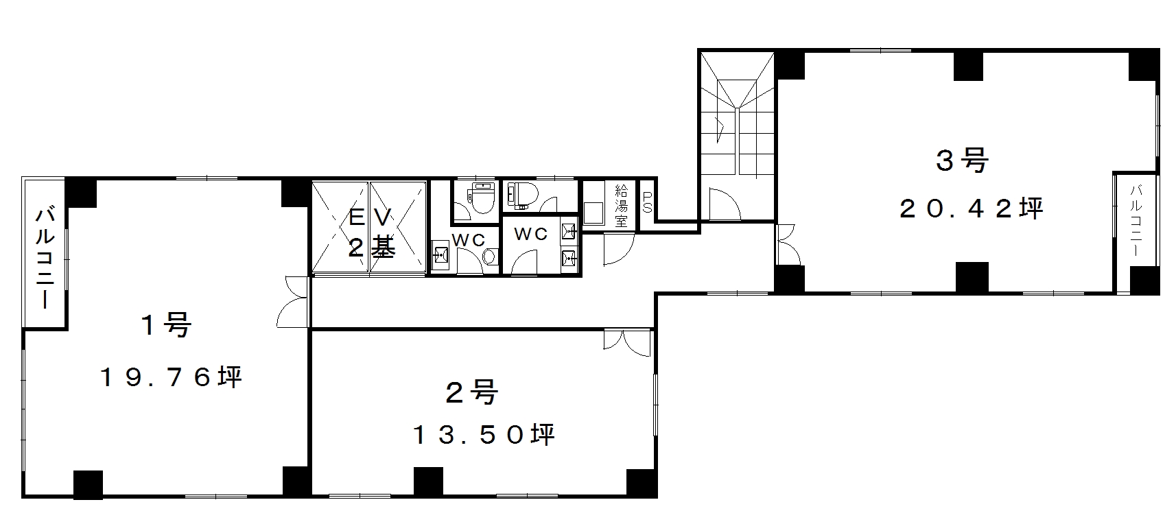
2階13.5坪

- この物件の賃料の価格帯(共益費込)
- 坪@8,001円~@12,000円
| 物件名 | 第7新大阪 【このビルのその他の募集階】 |
||
|---|---|---|---|
| 住所 | 大阪府大阪市淀川区西中島5丁目7番19号 新大阪・西中島でよく検索されるその他の物件 |
||
| 構造(規模) | 鉄骨鉄筋コンクリート造地上10階建 | ||
| 築年月 | 1985年10月1日 | ||
| 坪数 |
13.5坪 |
||
| 階数 | 2階 | ||
| 保証金 | |||
| 敷金 | 賃料の3カ月分 | ||
| 礼金 | - | ||
| 沿線 最寄駅 |
地下鉄御堂筋線 西中島南方駅 徒歩4分 (西中島南方駅の賃貸事務所) 地下鉄御堂筋線 新大阪駅 徒歩4分 (新大阪駅の賃貸事務所) JR東海道本線 新大阪駅 徒歩4分 (新大阪駅の賃貸事務所) |
||
| アクセス | 新大阪駅まで電車4分 大阪駅梅田駅まで電車7分 関西空港まで電車63分、車50分 伊丹空港まで車20分 高速入口:11号線加島入口 |
||
| EV基数 | 2基 | 人荷EV基数 | - |
| 空調タイプ | 個別 | ||
| 備考 | |||

大阪メトロ御堂筋線「西中島南方駅」、「新大阪駅」徒歩4分の立地に位置するビル。1985年築のビルですが2011年に共用部をリニューアルしていますので綺麗になったビルです。8坪~15坪ほどの貸室が主なビルです。貸会議室がありますので、会議をよくされるお客様におすすめです。
- お電話でお問い合わせ(無料)
-
平日13時までのお問い合わせで
当日に物件をご紹介!
お電話の場合「物件番号:D101516」
をお伝えください
