お気に入りを解除しました。
新大阪コパー
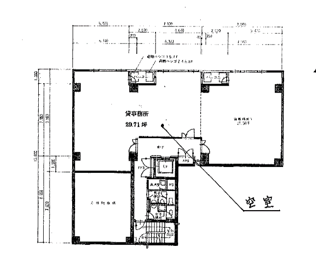
物件番号:D101442
2階29.71坪

- この物件の賃料の価格帯(共益費込)
- 坪@8,001円~@12,000円
| 物件名 | 新大阪コパー 【このビルのその他の募集階】 |
||
|---|---|---|---|
| 住所 | 大阪府大阪市淀川区西中島4丁目11番21号 新大阪・西中島でよく検索されるその他の物件 |
||
| 構造(規模) | 鉄筋コンクリート造地上8階建 | ||
| 築年月 | 1991年6月1日 | ||
| 坪数 |
29.71坪 |
||
| 階数 | 2階 | ||
| 保証金 | 総額1,079,000円(@50,000円/坪) | ||
| 敷金 | - | ||
| 礼金 | - | ||
| 沿線 最寄駅 |
地下鉄御堂筋線 西中島南方駅 徒歩4分 (西中島南方駅の賃貸事務所) 地下鉄御堂筋線 新大阪駅 徒歩8分 (新大阪駅の賃貸事務所) JR東海道本線 新大阪駅 徒歩9分 (新大阪駅の賃貸事務所) |
||
| アクセス | 新大阪駅まで電車6分 大阪駅梅田駅まで電車10分 関西空港まで電車65分、車50分 伊丹空港まで車20分 高速入口:11号線加島入口 |
||
| EV基数 | 1基 | 人荷EV基数 | - |
| 空調タイプ | 個別 | ||
| 備考 | 新耐震基準適合。シャワートイレ。立体駐車場有。 | ||

大阪メトロ御堂筋線「西中島南方駅」徒歩4分の立地に位置するビル。ビル裏には縦列タイプの平面駐車場も有るので、ハイルーフのお車も停められます。基準階ホールや共用部は白でまとめられており、清潔感のあるスッキリとした内装です。また、管理人さんが常駐しているため何かお困りごとがあったときも迅速に対応頂けます。
- お電話でお問い合わせ(無料)
-
平日13時までのお問い合わせで
当日に物件をご紹介!
お電話の場合「物件番号:D101442」
をお伝えください

