お気に入りを解除しました。
まるみや
物件番号:D101430
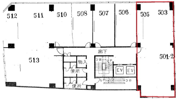
5階36.01坪

- この物件の賃料の価格帯(共益費込)
- この部屋は成約済みです
| 物件名 | まるみや 【このビルのその他の募集階】 |
||
|---|---|---|---|
| 住所 | 大阪府大阪市淀川区西中島4丁目7番18号 新大阪・西中島でよく検索されるその他の物件 |
||
| 構造(規模) | 鉄骨鉄筋コンクリート造地上8階建 | ||
| 築年月 | 1991年9月6日 | ||
| 坪数 |
36.01坪 |
||
| 階数 | 5階 | ||
| 保証金 | - | ||
| 敷金 | - | ||
| 礼金 | - | ||
| 沿線 最寄駅 |
地下鉄御堂筋線 西中島南方駅 徒歩3分 (西中島南方駅の賃貸事務所) JR東海道本線 新大阪駅 徒歩8分 (新大阪駅の賃貸事務所) 地下鉄御堂筋線 新大阪駅 徒歩7分 (新大阪駅の賃貸事務所) |
||
| アクセス | 新大阪駅まで電車5分 大阪駅梅田駅まで電車9分 関西空港まで電車65分、車50分 伊丹空港まで車20分 高速入口:11号線加島入口 |
||
| EV基数 | 2基 | 人荷EV基数 | - |
| 空調タイプ | 個別 | ||
| 備考 | 基準階面積約100坪に対し、最小スパンが約9坪という様々な面積に対応可能な大型角ビル。 大阪メトロ御堂筋線「西中島南方」駅から徒歩3分、阪急京都本線「南方」駅から徒歩5分とアクセスもよく、近隣には郵便局、銀行、飲食店が充実していますので大変便利な立地です。 |
||

大阪メトロ御堂筋線「西中島南方駅」徒歩3分の立地に位置するビル。グレーのパネル張りの角ビル。管理がよく、共用部は清掃が行き届いていますので清潔感があります。基準階面積約100坪に対し、最小スパンが約9坪という様々な面積に対応可能なビルで、多数の優良企業が入居しています。管理事務所もビル内にありますので、ちょっとした困りごとなどに素早い対応が可能です。
また、駐車場はハイルーフ車にも対応しているため、利便性が高いビルです。
- お電話でお問い合わせ(無料)
-
平日13時までのお問い合わせで
当日に物件をご紹介!
お電話の場合「物件番号:D101430」
をお伝えください
