お気に入りを解除しました。
NLC新大阪18号館(旧南極)
物件番号:D101336
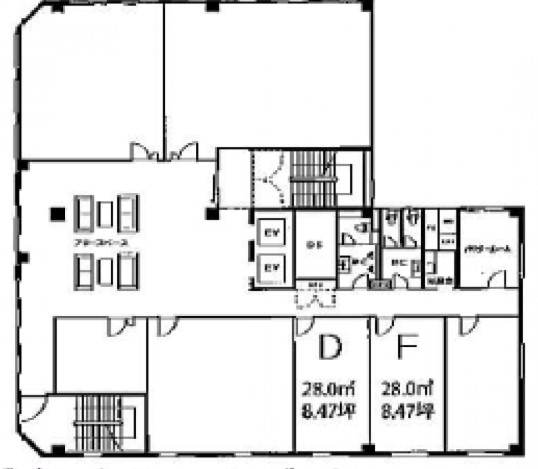
5階8.47坪

- この物件の賃料の価格帯(共益費込)
- この部屋は成約済みです
| 物件名 | NLC新大阪18号館(旧南極) 【このビルのその他の募集階】 |
||
|---|---|---|---|
| 住所 | 大阪府大阪市淀川区西中島3丁目18番21号 新大阪・西中島でよく検索されるその他の物件 |
||
| 構造(規模) | 鉄骨鉄筋コンクリート造地上6階建 | ||
| 築年月 | 1972年1月1日 | ||
| 坪数 |
8.47坪 |
||
| 階数 | 5階 | ||
| 保証金 | - | ||
| 敷金 | - | ||
| 礼金 | - | ||
| 沿線 最寄駅 |
地下鉄御堂筋線 西中島南方駅 徒歩1分 (西中島南方駅の賃貸事務所) 地下鉄御堂筋線 新大阪駅 徒歩7分 (新大阪駅の賃貸事務所) JR東海道本線 新大阪駅 徒歩7分 (新大阪駅の賃貸事務所) |
||
| アクセス | 新大阪駅まで電車4分 大阪駅梅田駅まで電車9分 関西空港まで電車64分、車50分 伊丹空港まで車20分 高速入口:11号線加島入口 |
||
| EV基数 | 1基 | 人荷EV基数 | - |
| 空調タイプ | 個別 | ||
| 備考 | 1フロア1テナント。貸会議室有。1階部分はコンビニ。地下鉄御堂筋線西中島南方駅 徒歩1分。新大阪駅から電車で4分、徒歩7分。 | ||

飲食店が立ち並ぶ賑やかな場所に位置するオフィスビル。2009年に全面リニューアルを行ない、無料wi-fiやフリースペース、貸会議室、喫煙スペース、パウダールームなど設備が整っていて快適なオフィス環境を実現している物件です。
- お電話でお問い合わせ(無料)
-
平日13時までのお問い合わせで
当日に物件をご紹介!
お電話の場合「物件番号:D101336」
をお伝えください

