お気に入りを解除しました。
新大阪11山よし(旧11山よし)
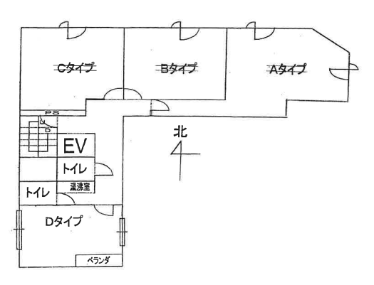
物件番号:D101317
8階10.39坪

- この物件の賃料の価格帯(共益費込)
- この部屋は成約済みです
| 物件名 | 新大阪11山よし(旧11山よし) 【このビルのその他の募集階】 |
||
|---|---|---|---|
| 住所 | 大阪府大阪市淀川区西中島3丁目11番24号 新大阪・西中島でよく検索されるその他の物件 |
||
| 構造(規模) | 鉄骨造地上8階地下1階建 | ||
| 築年月 | 1991年2月1日 | ||
| 坪数 |
10.39坪 |
||
| 階数 | 8階 | ||
| 保証金 | - | ||
| 敷金 | - | ||
| 礼金 | - | ||
| 沿線 最寄駅 |
地下鉄御堂筋線 新大阪駅 徒歩7分 (新大阪駅の賃貸事務所) 地下鉄御堂筋線 西中島南方駅 徒歩3分 (西中島南方駅の賃貸事務所) JR東海道本線 新大阪駅 徒歩7分 (新大阪駅の賃貸事務所) |
||
| アクセス | 新大阪駅まで電車5分 大阪駅梅田駅まで電車10分 関西空港まで電車64分、車50分 伊丹空港まで車20分 高速入口:11号線加島入口 |
||
| EV基数 | 1基 | 人荷EV基数 | - |
| 空調タイプ | 個別 | ||
| 備考 | 袖看板有。新耐震基準適合。地下鉄御堂筋線西中島南方駅 徒歩3分。新大阪駅電車で5分、徒歩7分。 | ||

ガラスウォールが空を反射し美しいビルです。ビル横は集合住宅の公園があるので、緑に癒されること間違いなしです。また1階にサンドイッチ屋さんもあるので、軽食やコーヒーで気分転換もできます。角ビルなので明るく開放感があります。
- お電話でお問い合わせ(無料)
-
平日13時までのお問い合わせで
当日に物件をご紹介!
お電話の場合「物件番号:D101317」
をお伝えください
