お気に入りを解除しました。
共栄ファイブ
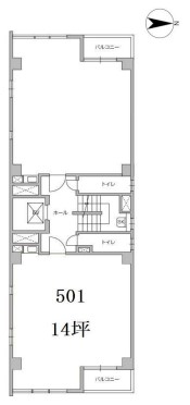
物件番号:C504106
5階14坪

- この物件の賃料の価格帯(共益費込)
- 坪@8,001円~@12,000円
| 物件名 | 共栄ファイブ 【このビルのその他の募集階】 |
||
|---|---|---|---|
| 住所 | 大阪府大阪市北区中津1丁目2番21号 梅田でよく検索されるその他の物件 |
||
| 構造(規模) | 鉄骨造地上8階建 | ||
| 築年月 | 1980年2月1日 | ||
| 坪数 |
14坪 |
||
| 階数 | 5階 | ||
| 保証金 | 総額1,008,000円(@72,000円/坪) | ||
| 敷金 | - | ||
| 礼金 | - | ||
| 沿線 最寄駅 |
地下鉄御堂筋線 中津駅 徒歩1分 (中津駅の賃貸事務所) 地下鉄御堂筋線 梅田駅 徒歩8分 (梅田駅の賃貸事務所) JR東海道本線 大阪駅 徒歩8分 (大阪駅の賃貸事務所) |
||
| アクセス | 新大阪駅まで電車15分 大阪駅梅田駅まで電車6分 関西空港まで電車60分、車45分 伊丹空港まで車20分 高速入口:環状線南森町・扇町入口 |
||
| EV基数 | 1基 | 人荷EV基数 | - |
| 空調タイプ | 個別 | ||
| 備考 | |||

大阪メトロ御堂筋線「中津駅」徒歩1分の駅近好立地ビル。ワンフロアーに2テナントの小規模オフィス。入居しているテナントの多くが、来店型のスクールですので、梅田、中津周辺で教室系の業種をお考えの方にはぴったりなオフィスです。
- お電話でお問い合わせ(無料)
-
平日13時までのお問い合わせで
当日に物件をご紹介!
お電話の場合「物件番号:C504106」
をお伝えください

