お気に入りを解除しました。
商業第二
物件番号:C503507
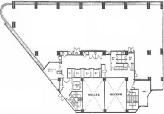
10階76.36坪

- この物件の賃料の価格帯(共益費込)
- この部屋は成約済みです
| 物件名 | 商業第二 【このビルのその他の募集階】 |
||
|---|---|---|---|
| 住所 | 大阪府大阪市北区豊崎5丁目4番9号 梅田でよく検索されるその他の物件 |
||
| 構造(規模) | 鉄骨鉄筋コンクリート造地上12階地下1階建 | ||
| 築年月 | 1993年5月1日 | ||
| 坪数 |
76.36坪 |
||
| 階数 | 10階 | ||
| 保証金 | - | ||
| 敷金 | - | ||
| 礼金 | - | ||
| 沿線 最寄駅 |
地下鉄御堂筋線 中津駅 徒歩2分 (中津駅の賃貸事務所) 地下鉄御堂筋線 梅田駅 徒歩7分 (梅田駅の賃貸事務所) |
||
| アクセス | 大阪駅梅田駅まで電車15分 伊丹空港まで車20分 高速入口:環状線長柄 |
||
| EV基数 | 3基 | 人荷EV基数 | 1基 |
| 空調タイプ | 個別 | ||
| 備考 | |||

中津エリア・大通りに面すハイスペックビル。フロア全体は台形の形をしており、共用部は重厚感がある内装に。ワンフロアは150坪を超え、分割のバリエーションは約40坪~とバリエーションも豊富です。立地とグレード感を希望する方にオススメです。
- お電話でお問い合わせ(無料)
-
平日13時までのお問い合わせで
当日に物件をご紹介!
お電話の場合「物件番号:C503507」
をお伝えください

