お気に入りを解除しました。
フジテラス大阪梅田(旧:ウイング北梅田)
物件番号:C503324
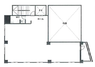
3階28.56坪
- この物件の賃料の価格帯(共益費込)
- この部屋は成約済みです
| 物件名 | フジテラス大阪梅田(旧:ウイング北梅田) 【このビルのその他の募集階】 |
||
|---|---|---|---|
| 住所 | 大阪府大阪市北区豊崎3丁目13番6号 梅田でよく検索されるその他の物件 |
||
| 構造(規模) | 鉄筋コンクリート造地上8階地下1階建 | ||
| 築年月 | 1993年5月1日 | ||
| 坪数 |
28.56坪 |
||
| 階数 | 3階 | ||
| 保証金 | - | ||
| 敷金 | - | ||
| 礼金 | - | ||
| 沿線 最寄駅 |
地下鉄御堂筋線 中津駅 徒歩2分 (中津駅の賃貸事務所) 地下鉄御堂筋線 梅田駅 徒歩11分 (梅田駅の賃貸事務所) JR大阪環状線 大阪駅 徒歩12分 (大阪駅の賃貸事務所) |
||
| アクセス | 新大阪駅まで電車17分 大阪駅梅田駅まで電車11分 関西空港まで電車62分、車45分 伊丹空港まで車20分 高速入口:環状線南森町・扇町入口 |
||
| EV基数 | 1基 | 人荷EV基数 | - |
| 空調タイプ | 個別 | ||
| 備考 | |||

大阪メトロ御堂筋線【中津駅】徒歩2分の立地に位置するビル。基準階面積約20坪のエレベーター降りたらすぐ貸室のワンフロアーワンテナントビルです。
- お電話でお問い合わせ(無料)
-
平日13時までのお問い合わせで
当日に物件をご紹介!
お電話の場合「物件番号:C503324」
をお伝えください

