お気に入りを解除しました。
ピアスタワー
物件番号:C503318
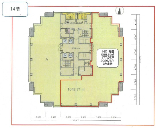
14階177.97坪

- この物件の賃料の価格帯(共益費込)
- 坪@20,001円~@30,000円
| 物件名 | ピアスタワー 【このビルのその他の募集階】 |
||
|---|---|---|---|
| 住所 | 大阪府大阪市北区豊崎3丁目19番3号 梅田でよく検索されるその他の物件 |
||
| 構造(規模) | 鉄骨・鉄骨鉄筋コンクリート造地上28階地下2階建 | ||
| 築年月 | 1996年9月30日 | ||
| 坪数 |
177.97坪 |
||
| 階数 | 14階 | ||
| 保証金 | |||
| 敷金 | 賃料の12カ月分 | ||
| 礼金 | - | ||
| 沿線 最寄駅 |
地下鉄御堂筋線 中津駅 徒歩2分 (中津駅の賃貸事務所) 地下鉄御堂筋線 梅田駅 徒歩10分 (梅田駅の賃貸事務所) 地下鉄谷町線 中崎町駅 徒歩11分 (中崎町駅の賃貸事務所) |
||
| アクセス | 新大阪駅まで電車16分 大阪駅梅田駅まで電車10分 関西空港まで電車61分、車45分 伊丹空港まで車20分 高速入口:環状線南森町・扇町入口 |
||
| EV基数 | 8基 | 人荷EV基数 | 1基 |
| 空調タイプ | 集中+個別 | ||
| 備考 | リフレッシュルームも完備。 | ||

大手化粧品メーカー所有の大型ハイグレードビル。最寄駅は中津ですが、JR大阪駅、地下鉄各線梅田駅も徒歩圏内のランドマークタワーです。口紅の形を模倣した特徴的な外観となっています。1階にはカフェ、3階にはテナント専用のリフレッシュルームがあります。外観もさることながら、貸室、共用部ともにハイスペックな造りとなっているため、来客の方にも満足して頂けます。
- お電話でお問い合わせ(無料)
-
平日13時までのお問い合わせで
当日に物件をご紹介!
お電話の場合「物件番号:C503318」
をお伝えください
