お気に入りを解除しました。
イトーピア扇町
物件番号:C405414
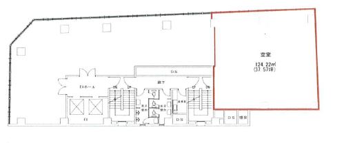
3階35.32坪
- この物件の賃料の価格帯(共益費込)
- この部屋は成約済みです
| 物件名 | イトーピア扇町 【このビルのその他の募集階】 |
||
|---|---|---|---|
| 住所 | 大阪府大阪市北区天神橋4丁目7番13号 南森町でよく検索されるその他の物件 |
||
| 構造(規模) | 鉄骨鉄筋コンクリート造地上9階地下1階建 | ||
| 築年月 | 1991年8月1日 | ||
| 坪数 |
35.32坪 |
||
| 階数 | 3階 | ||
| 保証金 | - | ||
| 敷金 | - | ||
| 礼金 | - | ||
| 沿線 最寄駅 |
地下鉄堺筋線 扇町駅 徒歩1分 (扇町駅の賃貸事務所) 地下鉄谷町線 天神橋筋六丁目駅 徒歩5分 (天神橋筋六丁目駅の賃貸事務所) JR大阪環状線 天満駅 徒歩1分 (天満駅の賃貸事務所) |
||
| アクセス | 新大阪駅まで電車14分 大阪駅梅田駅まで電車8分 関西空港まで電車54分、車45分 伊丹空港まで車20分 高速入口:環状線南森町・扇町入口 |
||
| EV基数 | 2基 | 人荷EV基数 | - |
| 空調タイプ | 個別 | ||
| 備考 | 大阪メトロ堺筋線「扇町」駅徒歩1分、JR大阪環状線「天満」駅徒歩2分とアクセス抜群です。 | ||

グレーの石貼りとカーテンウォールが映えるシックで綺麗なビルです。
ビルの西側には扇町公園が広がり、東側には天神橋筋商店街がある賑やかな立地。
大阪メトロ堺筋線「扇町」駅徒歩1分、JR大阪環状線「天満」駅徒歩2分とアクセス抜群です。
- お電話でお問い合わせ(無料)
-
平日13時までのお問い合わせで
当日に物件をご紹介!
お電話の場合「物件番号:C405414」
をお伝えください
