お気に入りを解除しました。
新ダイビル
物件番号:C304112
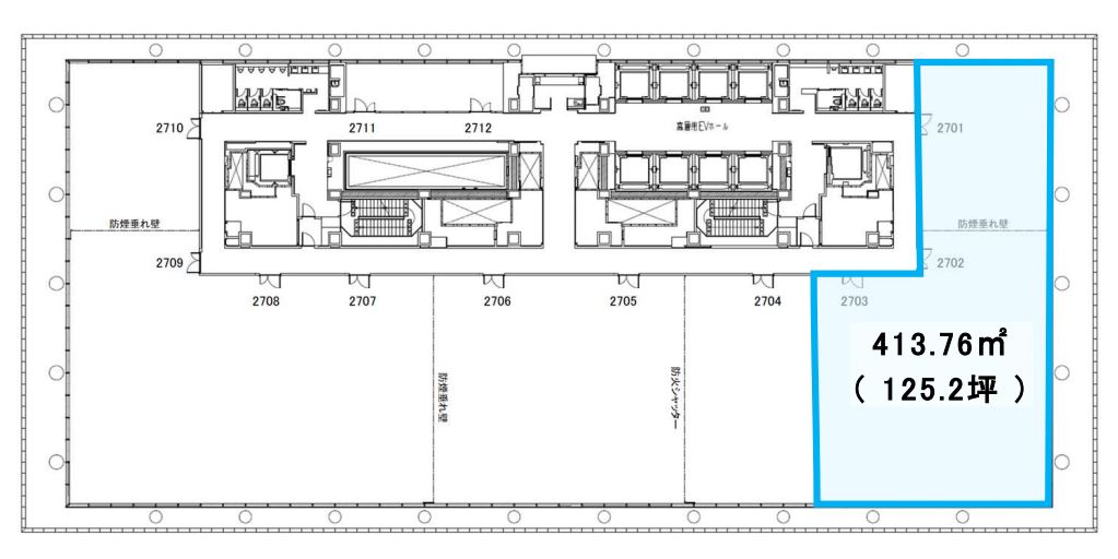
27階125.2坪
- この物件の賃料の価格帯(共益費込)
- この部屋は成約済みです
| 物件名 | 新ダイビル 【このビルのその他の募集階】 |
||
|---|---|---|---|
| 住所 | 大阪府大阪市北区堂島浜1丁目2番1号 梅田・西梅田・堂島・福島でよく検索されるその他の物件 |
||
| 構造(規模) | 鉄骨・鉄筋コンクリート・一部鉄骨鉄筋コンクリート造地上31階地下2階 | ||
| 築年月 | 2015年3月 | ||
| 坪数 |
125.2坪 |
||
| 階数 | 27階 | ||
| 保証金 | - | ||
| 敷金 | - | ||
| 礼金 | - | ||
| 沿線 最寄駅 |
地下鉄四つ橋線 西梅田駅 徒歩7分 (西梅田駅の賃貸事務所) 京阪線(本線・中之島線) 大江橋駅 徒歩1分 (大江橋駅の賃貸事務所) JR東西線 北新地駅 徒歩6分 (北新地駅の賃貸事務所) |
||
| アクセス | 新大阪駅まで電車18分 大阪駅梅田駅まで電車12分 関西空港まで電車62分、車45分 伊丹空港まで車20分 高速入口:環状線堂島・中之島入口 |
||
| EV基数 | 16基 | 人荷EV基数 | 2基 |
| 空調タイプ | |||
| 備考 | 2015年に竣工した、地上第31階建て、基準階面積約475坪のハイスペックビル。 カフェテリア、リフレッシュサロン、喫煙テラス、コンビニエンス、大小貸会議室など充実の共用スペースがあります。緊急時の非常用発電機による貸室へ電源供給やオイルダンパーを配置した制震構造が組み込まれており、最新のBCP対策がとられております。 室内はゆとりの天井高さ2800㎜、開放感はさることながらレイアウトしやすい無柱空間です。 |
||

敷地には約1000坪もの「堂島の杜」を配し、ムクノキ、エノキ、ケヤシ、モミジなどの樹木がビルを囲んでおります。周辺のオフィスビルとは一線を画した緑あふれる環境です。日本生態系協会によるハビタット評価認証制度(JHEP)において最高ランクの「AAA」取得。高いBCP対応能力、環境性能を実現し、日本政策投資銀行による「JDB Green Building 認証」において国内トップクラスの「2014 five stars」を取得。
また、大阪市建築物総合環境評価制度「CASBEE大阪みらい」で最高ランクの「S」を取得するなど、他のビルにはない環境と設備がここにあります。
- お電話でお問い合わせ(無料)
-
平日13時までのお問い合わせで
当日に物件をご紹介!
お電話の場合「物件番号:C304112」
をお伝えください

