お気に入りを解除しました。
堂島プラザ
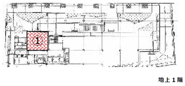
物件番号:C303115
1階21.5坪
- この物件の賃料の価格帯(共益費込)
- この部屋は成約済みです
| 物件名 | 堂島プラザ 【このビルのその他の募集階】 |
||
|---|---|---|---|
| 住所 | 大阪府大阪市北区堂島1丁目5番30号 梅田・西梅田・堂島・福島でよく検索されるその他の物件 |
||
| 構造(規模) | 鉄骨鉄筋コンクリート造地上12地下2階建 | ||
| 築年月 | 2010年2月 | ||
| 坪数 |
21.5坪 |
||
| 階数 | 1階 | ||
| 保証金 | - | ||
| 敷金 | - | ||
| 礼金 | - | ||
| 沿線 最寄駅 |
地下鉄四つ橋線 西梅田駅 徒歩4分 (西梅田駅の賃貸事務所) JR東西線 北新地駅 徒歩3分 (北新地駅の賃貸事務所) JR大阪環状線 大阪駅 徒歩7分 (大阪駅の賃貸事務所) |
||
| アクセス | 新大阪駅まで電車13分 大阪駅梅田駅まで電車7分 関西空港まで電車58分、車45分 伊丹空港まで車20分 高速入口:環状線堂島・梅田入口 |
||
| EV基数 | 3基 | 人荷EV基数 | 1基 |
| 空調タイプ | 個別 | ||
| 備考 | |||

大阪メトロ四つ橋線「西梅田駅」徒歩4分の立地に位置するビル。堂島地下街と直結し、JR・地下鉄などの各ターミナルへアクセスでき、新たなビジネスステージに相応しい充実した環境です。基準階面積約の240坪の貸室は4分割が可能なため、様々なニーズにお応えできます。
- お電話でお問い合わせ(無料)
-
平日13時までのお問い合わせで
当日に物件をご紹介!
お電話の場合「物件番号:C303115」
をお伝えください

