お気に入りを解除しました。
MF桜橋2
物件番号:C302221
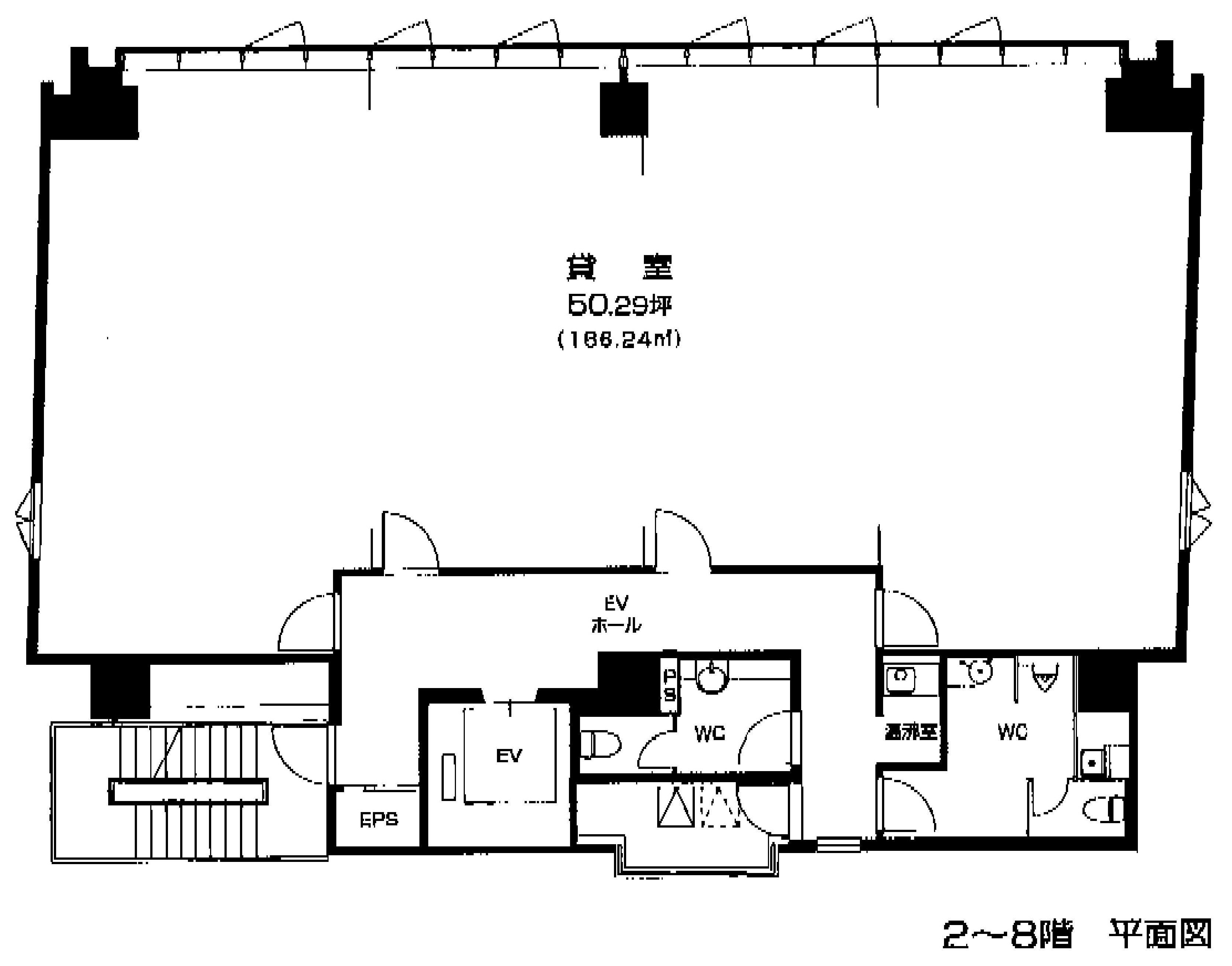
6階50.29坪

- この物件の賃料の価格帯(共益費込)
- 坪@15,001円~@20,000円
| 物件名 | MF桜橋2 【このビルのその他の募集階】 |
||
|---|---|---|---|
| 住所 | 大阪府大阪市北区曽根崎新地2丁目6番24号 西梅田・堂島・福島でよく検索されるその他の物件 |
||
| 構造(規模) | 鉄筋コンクリート造地上11階建 | ||
| 築年月 | 2015年2月1日 | ||
| 坪数 |
50.29坪 |
||
| 階数 | 6階 | ||
| 保証金 | 総額8,297,850円(@165,000円/坪) | ||
| 敷金 | - | ||
| 礼金 | - | ||
| 沿線 最寄駅 |
JR東西線 北新地駅 徒歩3分 (北新地駅の賃貸事務所) 地下鉄四つ橋線 西梅田駅 徒歩5分 (西梅田駅の賃貸事務所) JR大阪環状線 大阪駅 徒歩7分 (大阪駅の賃貸事務所) |
||
| アクセス | 新大阪駅まで電車13分 大阪駅梅田駅まで電車7分 関西空港まで電車62分、車45分 伊丹空港まで車20分 高速入口:環状線堂島・梅田入口 |
||
| EV基数 | 1基 | 人荷EV基数 | - |
| 空調タイプ | 個別 | ||
| 備考 | |||

大通り・国道2号線沿いに面するオフィスビル。洗練されたガラスウォールの外観が目を引きます。1階にはウェディングドレスのショールームが入居し華やかな雰囲気。2015年に竣工され免震構造で安全性も確保。1階には多目的トイレも設置しているのでバリアフリーにもたいおうしています。
- お電話でお問い合わせ(無料)
-
平日13時までのお問い合わせで
当日に物件をご紹介!
お電話の場合「物件番号:C302221」
をお伝えください
