お気に入りを解除しました。
大阪小学館
物件番号:C302214
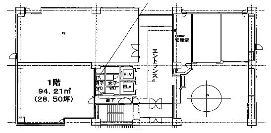
1階28.49坪
- この物件の賃料の価格帯(共益費込)
- この部屋は成約済みです
| 物件名 | 大阪小学館 【このビルのその他の募集階】 |
||
|---|---|---|---|
| 住所 | 大阪府大阪市北区曽根崎新地2丁目6番12号 西梅田・堂島・福島でよく検索されるその他の物件 |
||
| 構造(規模) | 鉄骨鉄筋コンクリート造地上9階地下1階建 | ||
| 築年月 | 1983年2月1日 | ||
| 坪数 |
28.49坪 |
||
| 階数 | 1階 | ||
| 保証金 | - | ||
| 敷金 | - | ||
| 礼金 | - | ||
| 沿線 最寄駅 |
地下鉄四つ橋線 西梅田駅 徒歩3分 (西梅田駅の賃貸事務所) JR大阪環状線 大阪駅 徒歩5分 (大阪駅の賃貸事務所) JR東西線 北新地駅 徒歩2分 (北新地駅の賃貸事務所) |
||
| アクセス | 新大阪駅まで電車11分 大阪駅梅田駅まで電車5分 関西空港まで電車59分、車45分 伊丹空港まで車20分 高速入口:環状線堂島・梅田入口 |
||
| EV基数 | 2基 | 人荷EV基数 | - |
| 空調タイプ | 個別 | ||
| 備考 | |||

大手出版社「小学館」のグループ会社が所有しているビルで、大通り沿いに面しており1階は小学館から出版されてされている話題の図書の広告を掲載されているので大変視認性があります。ビル内はシックな印象で管理も行き届いていますし、管理人も常駐しており、安心してご入居頂けます。
- お電話でお問い合わせ(無料)
-
平日13時までのお問い合わせで
当日に物件をご紹介!
お電話の場合「物件番号:C302214」
をお伝えください

