お気に入りを解除しました。
関電不動産西梅田(旧:西梅田MID)
物件番号:C302207
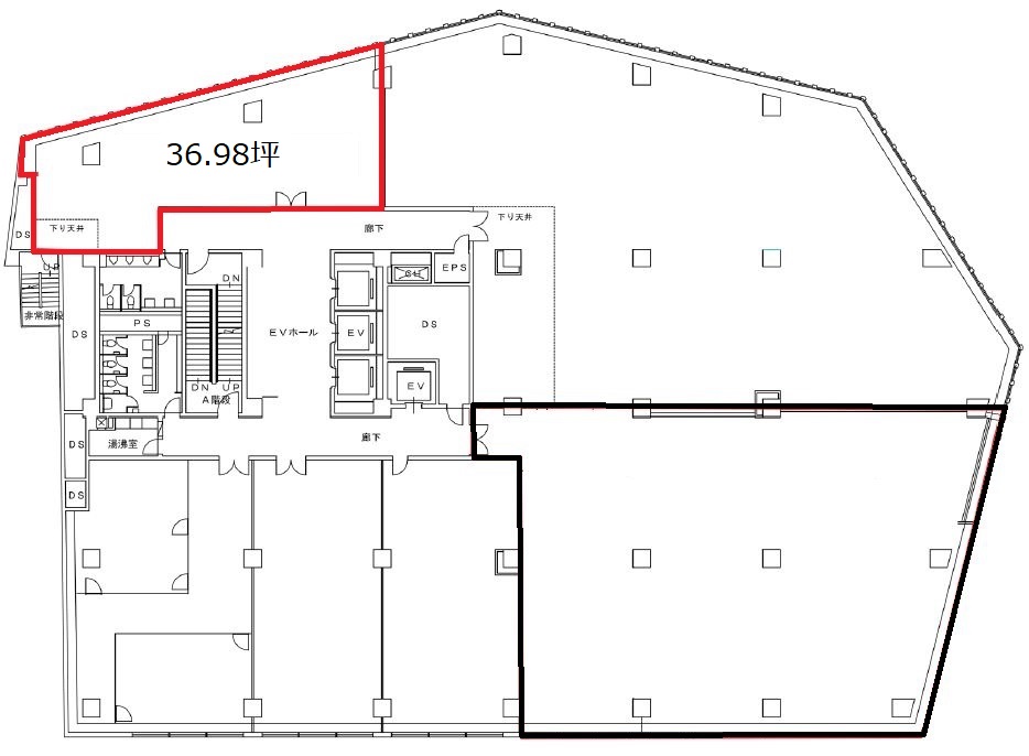
9階36.98坪
- この物件の賃料の価格帯(共益費込)
- この部屋は成約済みです
| 物件名 | 関電不動産西梅田(旧:西梅田MID) 【このビルのその他の募集階】 |
||
|---|---|---|---|
| 住所 | 大阪府大阪市北区曽根崎新地2丁目2番16号 西梅田・堂島・福島でよく検索されるその他の物件 |
||
| 構造(規模) | 鉄骨鉄筋コンクリート造地上9階地下4階建 | ||
| 築年月 | 1965年12月1日 | ||
| 坪数 |
36.98坪 |
||
| 階数 | 9階 | ||
| 保証金 | - | ||
| 敷金 | - | ||
| 礼金 | - | ||
| 沿線 最寄駅 |
JR東西線 北新地駅 徒歩1分 (北新地駅の賃貸事務所) 地下鉄四つ橋線 西梅田駅 徒歩2分 (西梅田駅の賃貸事務所) JR大阪環状線 大阪駅 徒歩4分 (大阪駅の賃貸事務所) |
||
| アクセス | 新大阪駅まで電車110分 大阪駅梅田駅まで電車4分 関西空港まで電車59分、車45分 伊丹空港まで車20分 高速入口:環状線堂島・梅田入口 |
||
| EV基数 | 3基 | 人荷EV基数 | 1基 |
| 空調タイプ | 集中+個別 | ||
| 備考 | |||

四ツ橋筋と2号線に面した桜橋交差点に位置する角ビル。基準階面積は約400坪の大型ビルで、エレベーターは4基設置、50年以上前に建てられましたが耐震補強工事、共用部のリニューアル工事を行っており、丁寧に管理されています。このビルは各線大阪駅・確梅田駅に直結しており大変便利です。
- お電話でお問い合わせ(無料)
-
平日13時までのお問い合わせで
当日に物件をご紹介!
お電話の場合「物件番号:C302207」
をお伝えください

