お気に入りを解除しました。
リゾートトラスト御堂筋(旧住友生命御堂筋)
物件番号:C201493
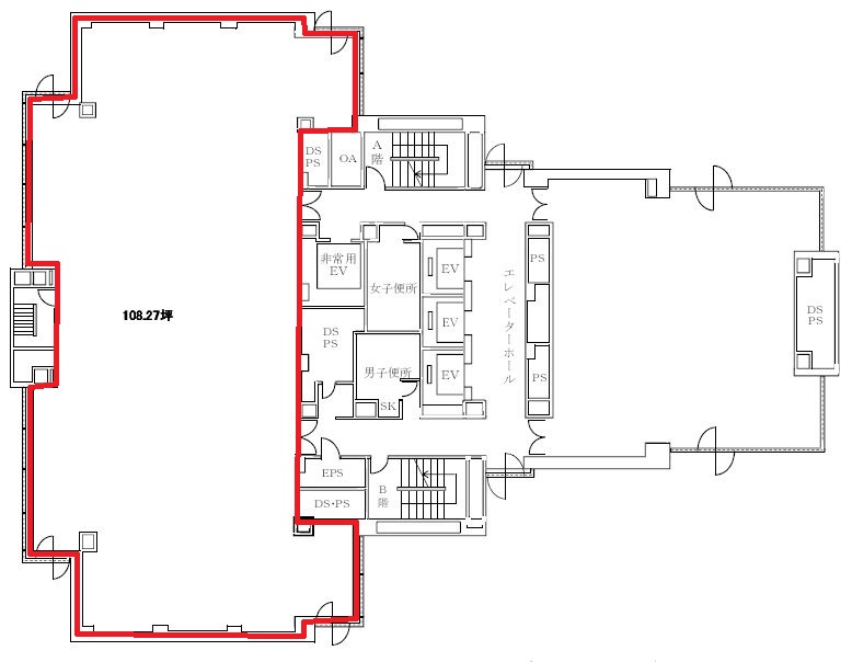
15階108.27坪
- この物件の賃料の価格帯(共益費込)
- この部屋は成約済みです
| 物件名 | リゾートトラスト御堂筋(旧住友生命御堂筋) 【このビルのその他の募集階】 |
||
|---|---|---|---|
| 住所 | 大阪府大阪市北区西天満4丁目14番3号 梅田・南森町でよく検索されるその他の物件 |
||
| 構造(規模) | 鉄骨鉄筋コンクリート造地上20階地下1階建 | ||
| 築年月 | 1983年3月1日 | ||
| 坪数 |
108.27坪 |
||
| 階数 | 15階 | ||
| 保証金 | - | ||
| 敷金 | - | ||
| 礼金 | - | ||
| 沿線 最寄駅 |
地下鉄御堂筋線 淀屋橋駅 徒歩7分 (淀屋橋駅の賃貸事務所) 地下鉄谷町線 東梅田駅 徒歩6分 (東梅田駅の賃貸事務所) 地下鉄御堂筋線 梅田駅 徒歩8分 (梅田駅の賃貸事務所) |
||
| アクセス | 新大阪駅まで電車18分 大阪駅梅田駅まで電車12分 関西空港まで電車59分、車45分 伊丹空港まで車20分 高速入口:環状線南森町・堂島入口 |
||
| EV基数 | 3基 | 人荷EV基数 | 1基 |
| 空調タイプ | 集中+個別 | ||
| 備考 | |||

御堂筋の真正面にそびえ立つランドマークビル。
- お電話でお問い合わせ(無料)
-
平日13時までのお問い合わせで
当日に物件をご紹介!
お電話の場合「物件番号:C201493」
をお伝えください

