お気に入りを解除しました。
H2O TOWER(エイチ・ツー・オー・タワー)
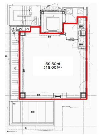
物件番号:C201232
2階18坪

- この物件の賃料の価格帯(共益費込)
- この部屋は成約済みです
| 物件名 | H2O TOWER(エイチ・ツー・オー・タワー) 【このビルのその他の募集階】 |
||
|---|---|---|---|
| 住所 | 大阪府大阪市北区西天満2丁目5番2号 梅田・南森町でよく検索されるその他の物件 |
||
| 構造(規模) | 鉄骨造地上12階地下1階建 | ||
| 築年月 | 2012年3月1日 | ||
| 坪数 |
18坪 |
||
| 階数 | 2階 | ||
| 保証金 | - | ||
| 敷金 | - | ||
| 礼金 | - | ||
| 沿線 最寄駅 |
京阪線(本線・中之島線) 大江橋駅 徒歩2分 (大江橋駅の賃貸事務所) 地下鉄御堂筋線 淀屋橋駅 徒歩4分 (淀屋橋駅の賃貸事務所) JR東西線 北新地駅 徒歩5分 (北新地駅の賃貸事務所) |
||
| アクセス | 新大阪駅まで電車16分 大阪駅梅田駅まで電車10分 関西空港まで電車56分、車45分 伊丹空港まで車20分 高速入口:環状線南森町・堂島入口 |
||
| EV基数 | 1基 | 人荷EV基数 | - |
| 空調タイプ | 個別 | ||
| 備考 | ・大通り沿いのビル ・新耐震基準 ・リバービュー物件 |
||
士業の方におすすめのH2O TOWER(エイチ・ツー・オー・タワー)ビルは、西天満エリアに位置し、京阪線(本線・中之島線)「大江橋駅」駅徒歩2分、大阪メトロ御堂筋線「淀屋橋駅」駅徒歩4分の立地にあるオフィスビルです。 梅田エリアへのアクセスも良好でありながら、落ち着いた環境が魅力のオフィスエリアです。 コンパクトで使い勝手の良いサイズ感です。 構造は鉄骨造地上12階地下1階建です。 2012年竣工です。
- お電話でお問い合わせ(無料)
-
平日13時までのお問い合わせで
当日に物件をご紹介!
お電話の場合「物件番号:C201232」
をお伝えください

