お気に入りを解除しました。
ヴィレッジリバー南森町
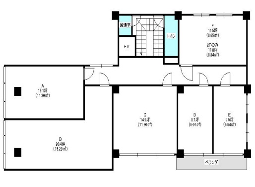
物件番号:C112229
2階20.4坪

- この物件の賃料の価格帯(共益費込)
- 坪@3,000円~@8,000円
| 物件名 | ヴィレッジリバー南森町 【このビルのその他の募集階】 |
||
|---|---|---|---|
| 住所 | 大阪府大阪市北区天満2丁目12番3号 南森町でよく検索されるその他の物件 |
||
| 構造(規模) | 鉄筋コンクリート造地上8階建 | ||
| 築年月 | 1972年1月1日 | ||
| 坪数 |
20.4坪 |
||
| 階数 | 2階 | ||
| 保証金 | |||
| 敷金 | 賃料の3カ月分 | ||
| 礼金 | - | ||
| 沿線 最寄駅 |
JR東西線 大阪天満宮駅 徒歩7分 (大阪天満宮駅の賃貸事務所) 地下鉄谷町線 天満橋駅 徒歩8分 (天満橋駅の賃貸事務所) 京阪線(本線・中之島線) 天満橋駅 徒歩8分 (天満橋駅の賃貸事務所) |
||
| アクセス | 新大阪駅まで電車23分 大阪駅梅田駅まで電車16分 関西空港まで電車53分、車45分 伊丹空港まで車20分 高速入口:環状線南森町・高麗橋入口 |
||
| EV基数 | 1基 | 人荷EV基数 | - |
| 空調タイプ | 個別 | ||
| 備考 | |||
- お電話でお問い合わせ(無料)
-
平日13時までのお問い合わせで
当日に物件をご紹介!
お電話の場合「物件番号:C112229」
をお伝えください
