お気に入りを解除しました。
若杉センタービル本館
物件番号:C111239
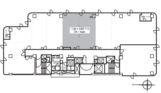
12階24.1坪
- この物件の賃料の価格帯(共益費込)
- この部屋は成約済みです
| 物件名 | 若杉センタービル本館 【このビルのその他の募集階】 |
||
|---|---|---|---|
| 住所 | 大阪府大阪市北区東天満2丁目9番1号 南森町でよく検索されるその他の物件 |
||
| 構造(規模) | 鉄骨鉄筋コンクリート造地上17階地下1階建 | ||
| 築年月 | 1992年 | ||
| 坪数 |
24.1坪 |
||
| 階数 | 12階 | ||
| 保証金 | - | ||
| 敷金 | - | ||
| 礼金 | - | ||
| 沿線 最寄駅 |
JR東西線 大阪天満宮駅 徒歩1分 (大阪天満宮駅の賃貸事務所) 地下鉄谷町線 南森町駅 徒歩3分 (南森町駅の賃貸事務所) 地下鉄堺筋線 南森町駅 徒歩3分 (南森町駅の賃貸事務所) |
||
| アクセス | 新大阪駅まで電車18分 大阪駅梅田駅まで電車12分 関西空港まで電車58分、車45分 伊丹空港まで車20分 高速入口:環状線南森町・扇町入口 |
||
| EV基数 | 2基 | 人荷EV基数 | 1基 |
| 空調タイプ | 個別 | ||
| 備考 | |||

JR東西線「大阪天満宮」駅、地下鉄「南森町」駅直結で傘いらずの快適オフィス。全面カーテンウォールのガラスばりの明るい大型窓。周辺では知らない人はいない程の目立つビルです。
17階には自動販売機が設置されている休憩室もありますので、ちょっとしたブレイクにも最適です。
- お電話でお問い合わせ(無料)
-
平日13時までのお問い合わせで
当日に物件をご紹介!
お電話の場合「物件番号:C111239」
をお伝えください
