お気に入りを解除しました。
アーバンエース東天満
物件番号:C111101
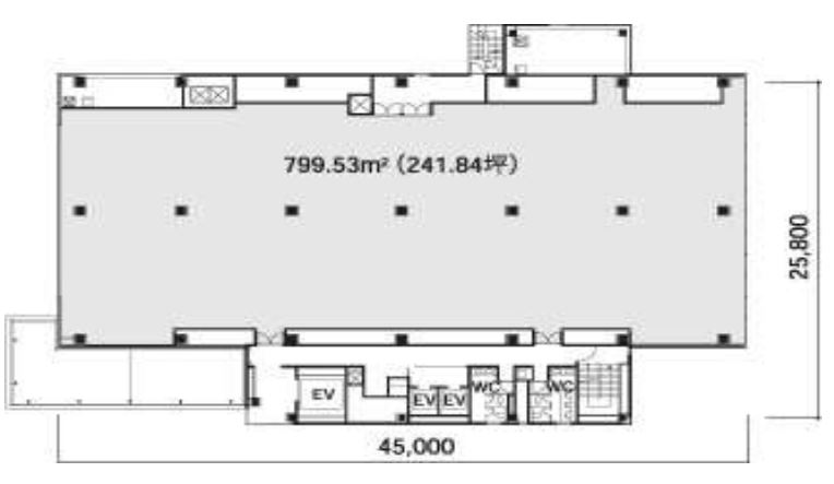
5階241.73坪
- この物件の賃料の価格帯(共益費込)
- この部屋は成約済みです
| 物件名 | アーバンエース東天満 【このビルのその他の募集階】 |
||
|---|---|---|---|
| 住所 | 大阪府大阪市北区東天満1丁目1番19号 南森町でよく検索されるその他の物件 |
||
| 構造(規模) | 鉄骨造地上10階建 | ||
| 築年月 | 1991年12月1日 | ||
| 坪数 |
241.73坪 |
||
| 階数 | 5階 | ||
| 保証金 | - | ||
| 敷金 | - | ||
| 礼金 | - | ||
| 沿線 最寄駅 |
JR東西線 大阪天満宮駅 徒歩5分 (大阪天満宮駅の賃貸事務所) 地下鉄堺筋線 南森町駅 徒歩7分 (南森町駅の賃貸事務所) 地下鉄谷町線 南森町駅 徒歩7分 (南森町駅の賃貸事務所) |
||
| アクセス | 新大阪駅まで電車23分 大阪駅梅田駅まで電車17分 関西空港まで電車58分、車45分 伊丹空港まで車20分 高速入口:環状線南森町・扇町入口 |
||
| EV基数 | 2基 | 人荷EV基数 | 1基 |
| 空調タイプ | 個別 | ||
| 備考 | コンピューター専用ビル。天井高さ2900㎜、OAフロア100㎜、非常用発電機、貸会議室、喫煙ルームなどオフィスワーカーがストレスなくお仕事ができる環境が整っています。 | ||

谷町筋に面す、基準階面積約240坪の大型ビル。データセンターなどのコンピューター専用に建設されたオフィスビルで、ハイスペックな設備が整っています。
- お電話でお問い合わせ(無料)
-
平日13時までのお問い合わせで
当日に物件をご紹介!
お電話の場合「物件番号:C111101」
をお伝えください
