お気に入りを解除しました。
大同パークサイド
物件番号:C101007
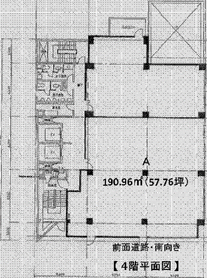
4階57.76坪

- この物件の賃料の価格帯(共益費込)
- この部屋は成約済みです
| 物件名 | 大同パークサイド 【このビルのその他の募集階】 |
||
|---|---|---|---|
| 住所 | 大阪府大阪市北区末広町3番3号 南森町でよく検索されるその他の物件 |
||
| 構造(規模) | 鉄骨造地上9階建地下1階建 | ||
| 築年月 | 1991年7月1日 | ||
| 坪数 |
57.76坪 |
||
| 階数 | 4階 | ||
| 保証金 | - | ||
| 敷金 | - | ||
| 礼金 | - | ||
| 沿線 最寄駅 |
地下鉄堺筋線 扇町駅 徒歩1分 (扇町駅の賃貸事務所) 地下鉄堺筋線 南森町駅 徒歩4分 (南森町駅の賃貸事務所) 地下鉄谷町線 南森町駅 徒歩4分 (南森町駅の賃貸事務所) |
||
| アクセス | 新大阪駅まで電車15分 大阪駅梅田駅まで電車9分 関西空港まで電車55分、車45分 伊丹空港まで車20分 高速入口:環状線南森町・扇町入口 |
||
| EV基数 | 2基 | 人荷EV基数 | - |
| 空調タイプ | 個別 | ||
| 備考 | |||

駅近。梅田エリアも徒歩圏内の好立地物件。
- お電話でお問い合わせ(無料)
-
平日13時までのお問い合わせで
当日に物件をご紹介!
お電話の場合「物件番号:C101007」
をお伝えください
